Sold 7/1 Nangnak Lane, Mont Albert
Share

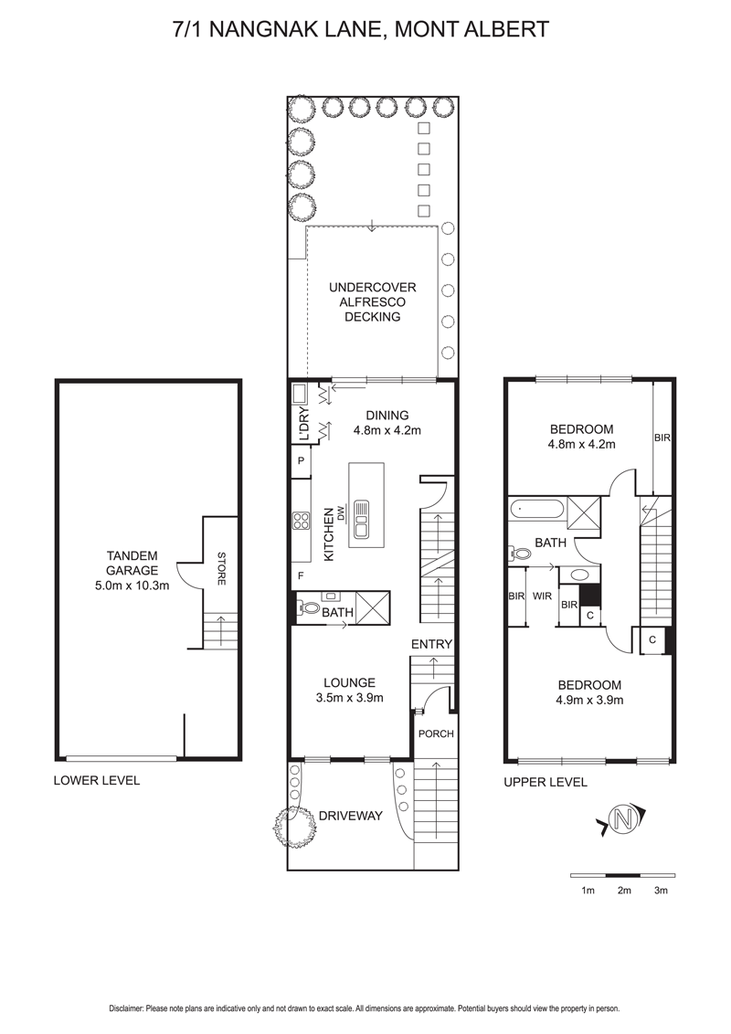
7/1 Nangnak Lane, Mont Albert

Auction Sale - Sold on Nov 21, 2013

Contact Agent for Sold Price

2 Bed
2 Bath
2 Car

Big on space with a brilliant lifestyle

As part of an exclusive, gated development, this near-new 3 level town residence is the epitome of refined low-maintenance living. Complemented by a modern colour palette, timber floors reflect abundant natural light through the serene lounge room, caesarstone kitchen with Smeg appliances and open-plan dining, streaming out to a covered alfresco and private garden. The master bedroom with built-in

... Read more

Location

Property statistics

  • Median house price

    $2.5m


  • Days on market

    -


  • Victorian auction clearance rate

    82%


  • Auctions last week in Victoria

    1314


Data sourced from REIV

Schools

Mont Albert Primary School

Barloa Road Mont Albert

0.7km

Box Hill Senior Secondary College

Dunloe Avenue Mont Albert North

0.8km

Our Holy Redeemer School

311 Mont Albert Road Surrey Hills

1.0km

Surrey Hills Primary School

Beatrice Avenue Surrey Hills

1.4km

The floorplan, measurements of rooms and land size are approximate. Jellis Craig does not accept any liability or responsibility for any inaccuracy in any plan, drawing or rendering used in the advertising material to describe the land and/or the property and/or any described features.
Suburb Report

Know your postcode

A reliable snapshot of the property market in Mont Albert.

Similar properties