Auction - Sat, 8 November 12:00PM
Inspections from
525

Building and Pest report for
16 Malvern Road, Mont Albert North
Inspections from
525
Click below to receive the report from Before You Buy
Receive an independent building and pest report from qualified inspectors at an affordable price through Before You Buy.
ETA: 2-4 Business Days
Auction - Sat, 8 November 12:00PM
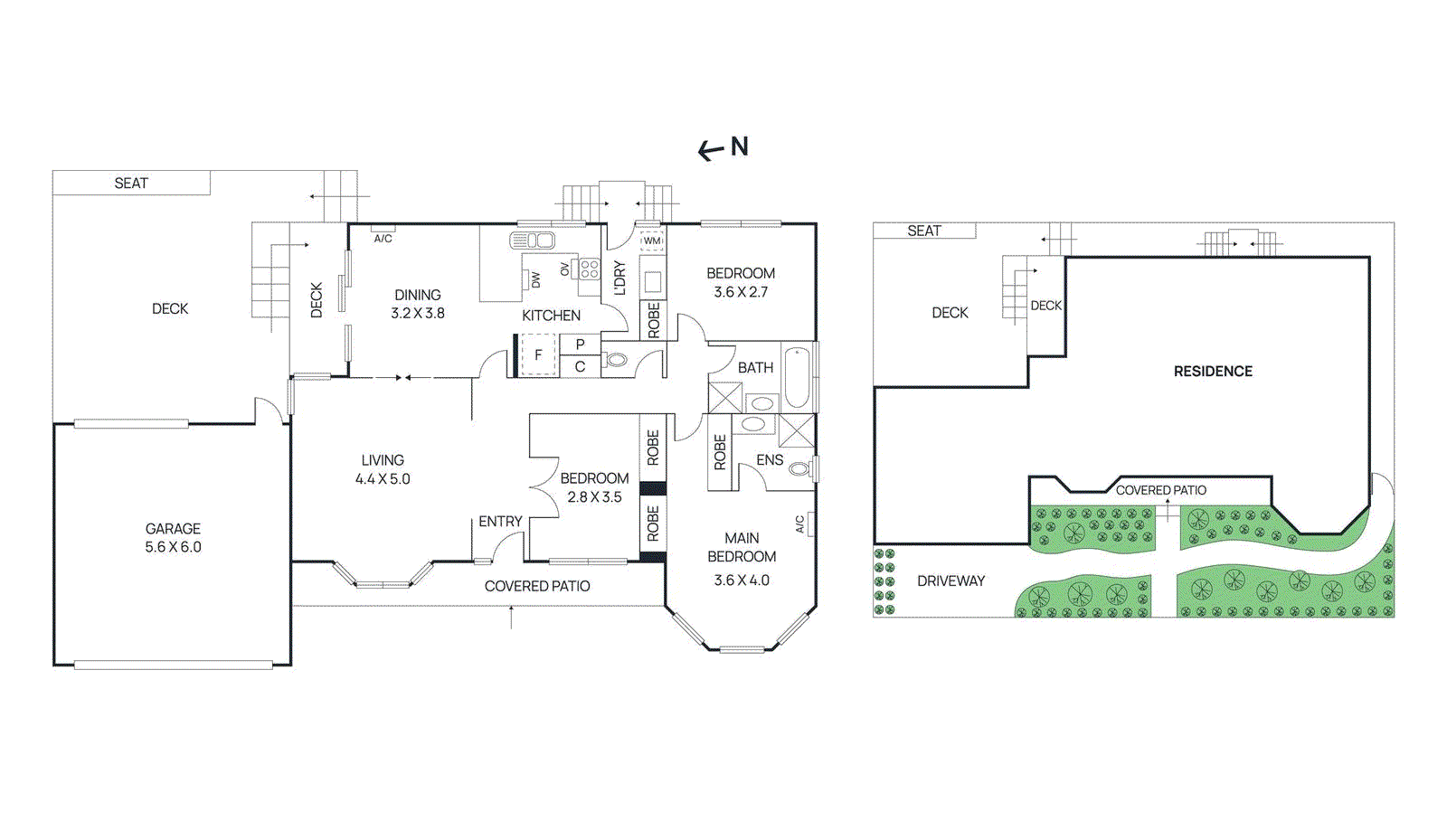
Showcasing all the stylish simplicity of this light filled single-level living, this spacious 3 bedroom, 2 bathroom home seamlessly blends contemporary comfort with north-facing alfresco indulgence in a peaceful pocket. Free-flowing and free-standing on approximately 310sqm, enjoy relaxed formal living/dining and roomy open-plan living/dining underpinned by a sparkling kitchen featuring Miele oven
... Read moreLand size: 310 Square Metres approx.
Sat 8 Nov.12:00pm
Saturday, 8 November
12:00pm
Saturday, 18 October
1:00pm - 1:30pm
Median house price
Days on market
Victorian auction clearance rate
Auctions last week in Victoria
Box Hill Senior Secondary College
Dunloe Avenue Mont Albert North
0.3km
Mont Albert Primary School
Barloa Road Mont Albert
0.8km
Koonung Secondary College
615 Elgar Road Mont Albert North
1.1km
Our Holy Redeemer School
311 Mont Albert Road Surrey Hills
1.4km
A reliable snapshot of the property market in Mont Albert North.