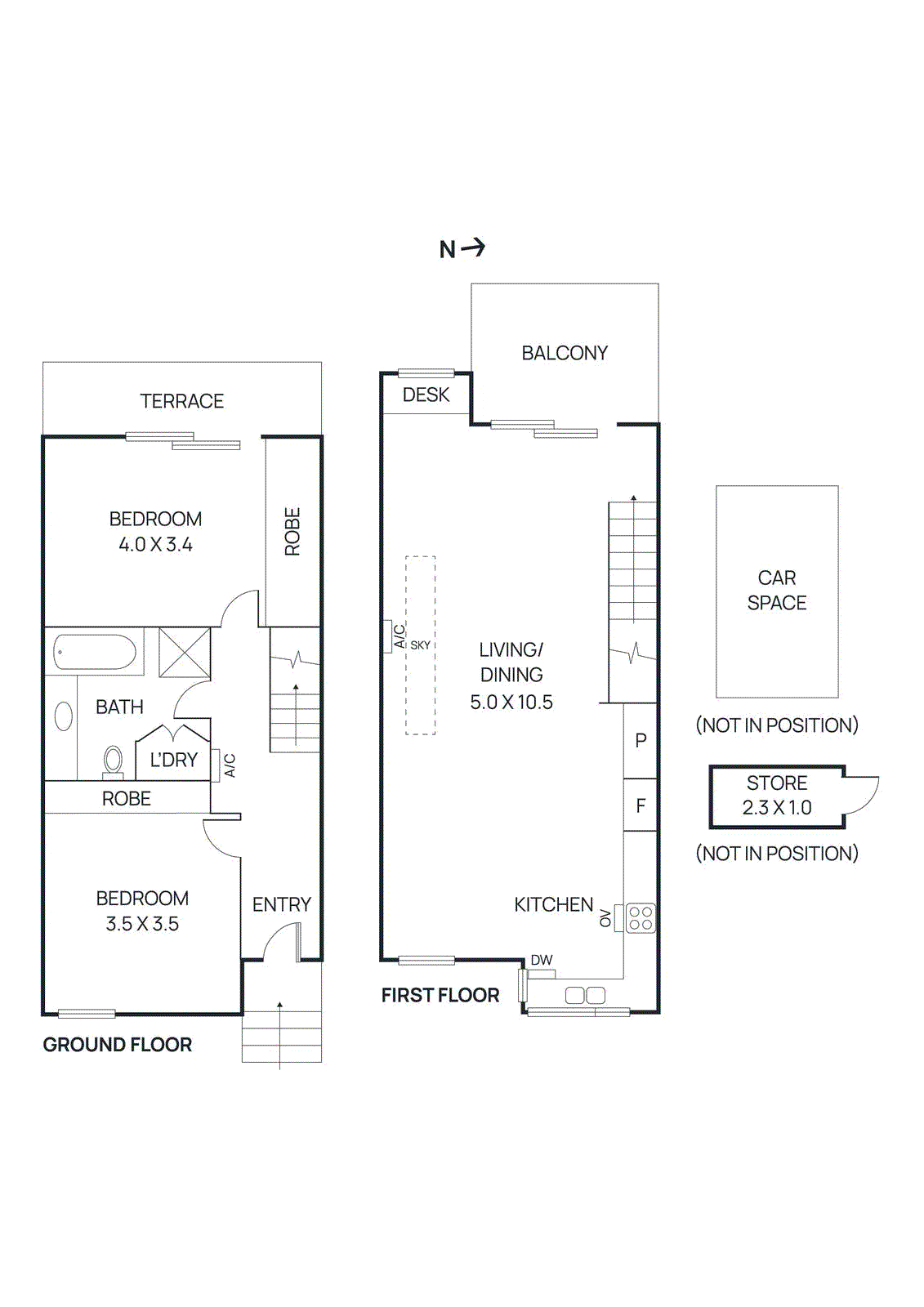
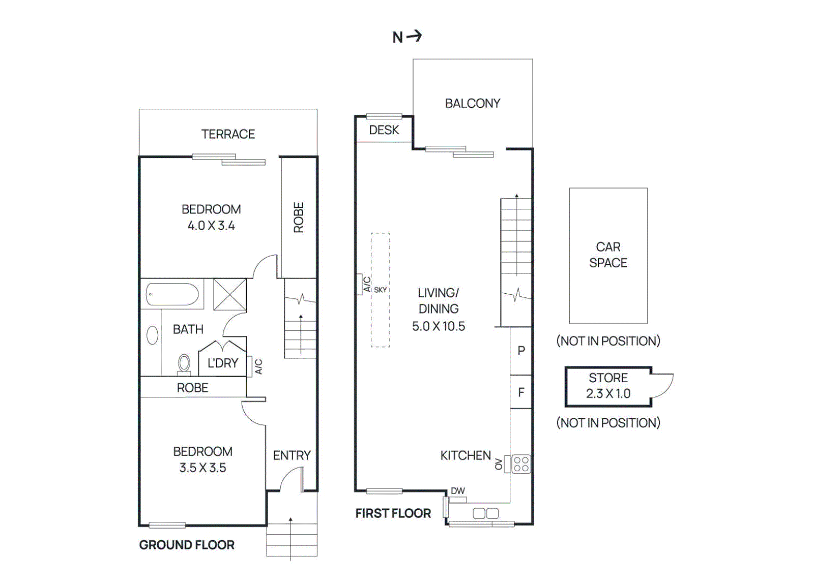
Buy 6/146 Thames Street, Box Hill North
Share

6/146 Thames Street, Box Hill North

For Sale

$720,000 - $770,000

2 Bed
1 Bath
1 Car

Quiet Garden Sanctuary with Urban Convenience

Perfectly positioned at the rear of a tranquil boutique complex, this large modern split level apartment offers a low maintenance lifestyle in a premium location, complete with its own private undercover car park. Surrounded by beautifully maintained gardens that change with the seasons, from mauve wisteria in bloom to golden red maple leaves in autumn, this home is truly a serene retreat.

... Read more

Inspections

Location

Property statistics

  • Median house price

    $1.4m


  • Days on market*

    30+


  • Victorian auction clearance rate

    73%


  • Auctions last week in Victoria

    295


Data sourced from REIV
* Date published: 15/10/2025

Schools

Box Hill Senior Secondary College

Dunloe Avenue Mont Albert North

0.6km

Koonung Secondary College

615 Elgar Road Mont Albert North

1.1km

Mont Albert Primary School

Barloa Road Mont Albert

1.2km

Our Lady of Sion College

1065 Whitehorse Road Box Hill

1.3km

The floorplan, measurements of rooms and land size are approximate. Jellis Craig does not accept any liability or responsibility for any inaccuracy in any plan, drawing or rendering used in the advertising material to describe the land and/or the property and/or any described features.
Suburb Report

Your connection to property insights

A reliable snapshot of the property market in Box Hill North.

Similar properties