Auction - Sat, 14 March 1:30PM
Auction Saturday 14th March at 1:30pm
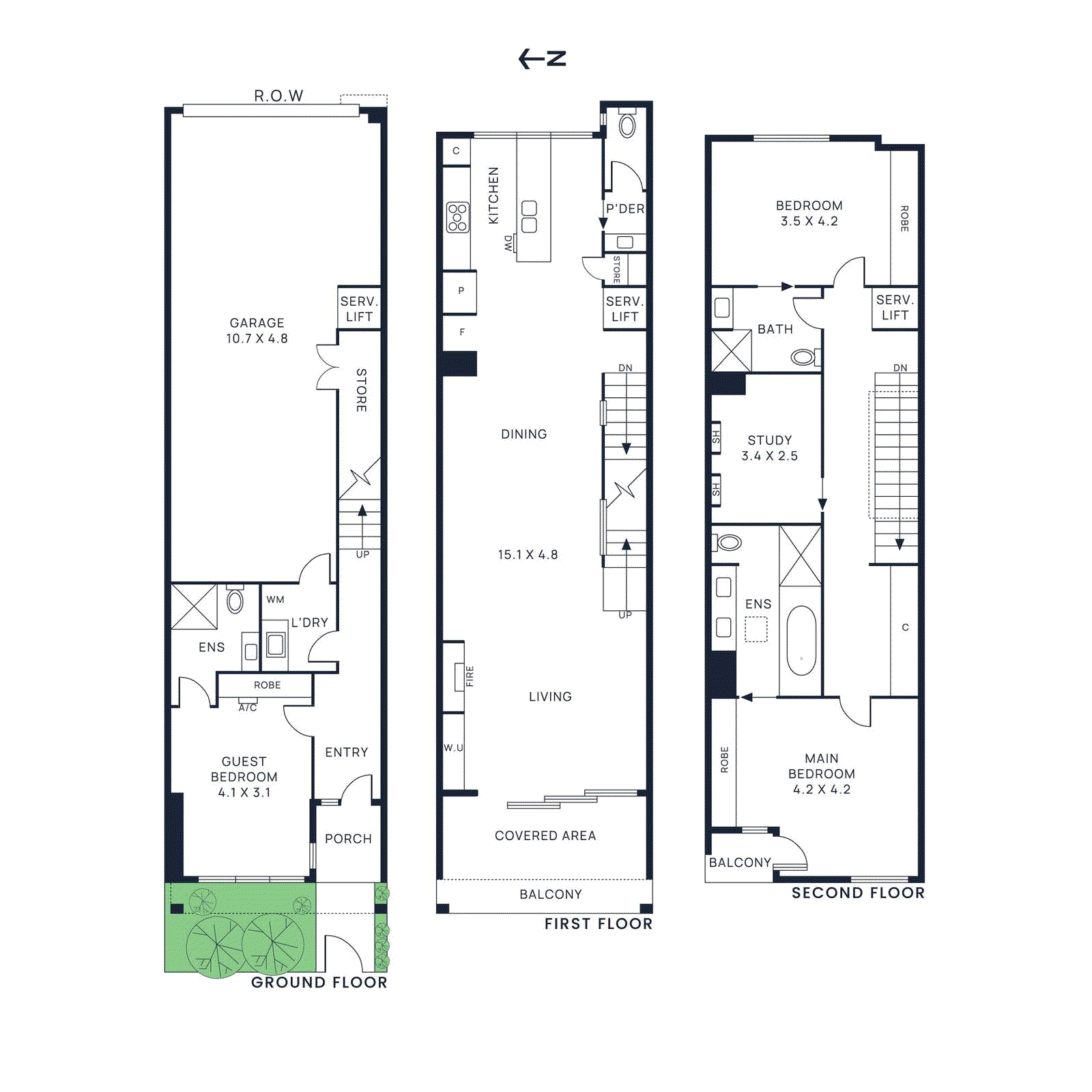
3 Bed
3 Bath
2 Car
1 Study
Designer living in a premium city-fringe setting
Nestled within a discreet garden community, just steps from South Melbourne Market and the allure of Albert Park Village, this exceptional architect-designed residence forms part of an acclaimed group, complete with a private garage and interiors tailored to uncompromising living and entertainment.
Quality is immediately evident on arrival, whether via the independent garden entry or direct
... Read moreAuction
Sat 14 Mar.1:30pm
Saturday, 14 March
1:30pm
Inspections
Wednesday, 25 February
1:30pm - 2:00pm
Saturday, 28 February
1:00pm - 1:30pm
Wednesday, 4 March
12:00pm - 12:30pm
Saturday, 7 March
10:00am - 10:30am
Location
Property statistics
-
Median house price
$1.8m
-
Days on market*
21
-
Victorian auction clearance rate
77%
-
Auctions last week in Victoria
922
Data sourced from REIV
*
Date published: 04/02/2026
Schools
Montague Continuing Education Centre
100 Montague Street South Melbourne
0.8km
Victorian College Of The Arts Secondary School
57 Miles Street Southbank
0.9km
Albert Park Primary School
Bridport Street Albert Park
1.2km
Mac Robertson Girls High School
350-370 Kings Way Melbourne
1.3km
The floorplan, measurements of rooms and land size are approximate. Jellis Craig does not accept any liability or responsibility for any inaccuracy in any plan, drawing or rendering used in the advertising material to describe the land and/or the property and/or any described features.
Suburb Report
Your connection to property insights
A reliable snapshot of the property market in South Melbourne.
Similar properties