Sold 23 Glenhuntly Road, Elwood
Share

23 Glenhuntly Road, Elwood

Private Sale - Sold on Jan 29, 2016

Contact Agent for Sold Price

2 Bed
1 Bath
  • Sam Gamon photo

    Sam Gamon

    Branch Manager & Auctioneer

Edwardian Enchantment Loving the Beach Cafe Culture

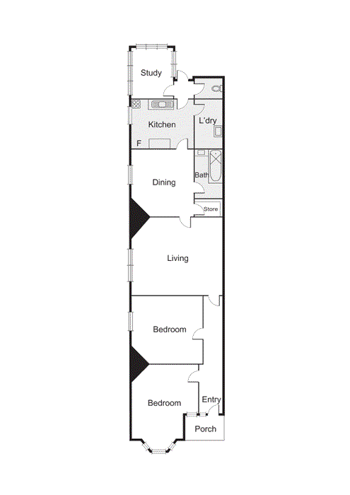
Live the lifestyle you want to live in this captivating 2-3 bedroom/study brick Edwardian.

Gorgeous with its 12ft high ceilings, timber fretwork, leadlight window, ceiling roses and potential fireplaces, this charming home features 2 spacious bedrooms (potential OFPs), a generously proportioned, inviting living room (potential OFP), delightful separate dining room with walk in pantry/linen

... Read more

Location

Property statistics

  • Median house price

    $2.3m


  • Days on market

    -


  • Victorian auction clearance rate

    83%


  • Auctions last week in Victoria

    1101


Data sourced from REIV

Schools

St Columba's School

24 Glenhuntly Road Elwood

0.1km

Elwood College

101 Glenhuntly Road Elwood

0.4km

Elwood Primary School

Scott St Elwood

0.9km

St Kilda Primary School

Brighton Rd St Kilda

1.4km

The floorplan, measurements of rooms and land size are approximate. Jellis Craig does not accept any liability or responsibility for any inaccuracy in any plan, drawing or rendering used in the advertising material to describe the land and/or the property and/or any described features.
Suburb Report

Know your postcode

A reliable snapshot of the property market in Elwood.

Similar properties