Auction - Sat, 15 November 10:00AM
Auction EPR: $1,875,000 -$2,000,000
3 Bed
1 Bath
8 Car
13.48 ac 
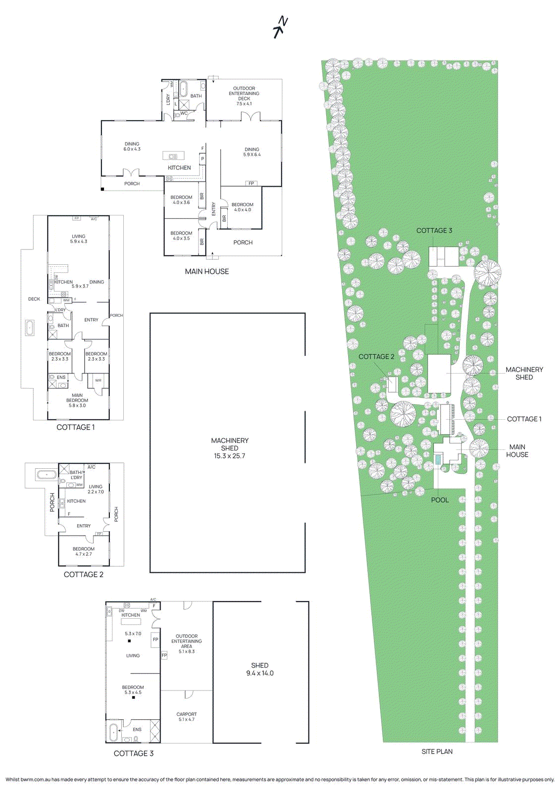
          A refined country estate of beauty, business and lifestyle
This unique 13.48-acre estate offers the ultimate lifestyle package - combining luxury rural living, income generation, and stunning natural surrounds, just minutes from Winchelsea’s township. A brand-new, custom-built residence forms the centrepiece of the property, showcasing Tasmanian Oak flooring, soaring 11-foot ceilings, bespoke joinery, and ambient open fireplace. Designed for
... Read moreLand size: 13.48 Acres approx.
Auction
Sat 15 Nov.10:00am
Saturday, 15 November
10:00am
Inspections
Thursday, 6 November
5:00pm - 5:30pm
Saturday, 8 November
12:30pm - 1:00pm
Location
Property statistics
- 
        
Median house price
$605,000
 - 
        
Days on market
25
 - 
        
Victorian auction clearance rate
89%
 - 
        
Auctions last week in Victoria
330
 
      
      Data sourced from REIV
    
  
          
            The floorplan, measurements of rooms and land size are approximate. Jellis Craig does not accept any liability or responsibility for any inaccuracy in any plan, drawing or rendering used in the advertising material to describe the land and/or the property and/or any described features.
          
        
      
      
    Suburb Report
Know your postcode
A reliable snapshot of the property market in Winchelsea.
  Similar properties