Sold 3/39 Fordham Road, Reservoir
Share

3/39 Fordham Road, Reservoir

Private Sale - Sold on Mar 20, 2026

$660,000

2 Bed
1 Bath
1 Car

Prime position, stylish presentation

For Sale by Expressions of Interest closing 8th April at 5:30pm.

A lifestyle of low maintenance ease is guaranteed with this privately placed townhouse, that’s positioned in such a well-connected pocket of Reservoir. Swing open the front door and you will be presented with beautiful, engineered timber floors that flow into an open plan kitchen, meals and living zone. The glistening kitchen

... Read more

Location

Property statistics

  • Median house price

    $950,000


  • Days on market*

    8


  • Victorian auction clearance rate

    76%


  • Auctions last week in Victoria

    1354


Data sourced from REIV
* Date published: 11/03/2026

Schools

St Stephen's School

71 Whitelaw Street Reservoir East

0.2km

Reservoir East Primary School

Boldrewood Parade Reservoir

0.5km

Reservoir Views Primary School

110 St Vigeons Road Reservoir

0.9km

Maharishi School of the Age of Enlightenment

2-6 Dundee Street Reservoir

1.1km

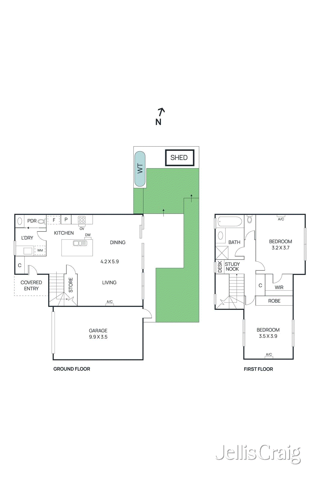
The floorplan, measurements of rooms and land size are approximate. Jellis Craig does not accept any liability or responsibility for any inaccuracy in any plan, drawing or rendering used in the advertising material to describe the land and/or the property and/or any described features.
Suburb Report

Your connection to property insights

A reliable snapshot of the property market in Reservoir.

Similar properties