For Sale
Inspections from
485

Building and Pest report for
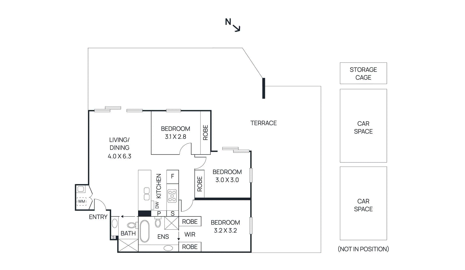
215/35 Camberwell Road, Hawthorn East
Inspections from
485
Click below to receive the report from Before You Buy
Receive an independent building and pest report from qualified inspectors at an affordable price through Before You Buy.
ETA: 2-4 Business Days
For Sale
A compelling statement in contemporary luxury, this exceptional, elevated Hawthorn Park residence combines architectural prestige with uncompromising finishes. Boasting a generous total area 200sqm (approx.) of combined indoor and outdoor space, this home delivers a rare sense of space and sophistication.
A vast wraparound terrace encases the interior, creating seamless indoor-outdoor living with
... Read moreSaturday, 11 October
12:15pm - 12:45pm
Median house price
Days on market
Victorian auction clearance rate
Auctions last week in Victoria
Auburn Primary School
Rathmines Road Hawthorn East
0.6km
Swinburne Senior Secondary College
505 Burwood Rd Hawthorn
0.9km
Camberwell Primary School
290 Camberwell Road Camberwell
1.1km
Preshil, The Margaret Lyttle Memorial School
395 Barkers Road Kew
1.1km
A reliable snapshot of the property market in Hawthorn East.