Buy 20 Daventry Street, Reservoir
Share

20 Daventry Street, Reservoir

For Sale

Under Offer

$935,000

2 Bed
1 Bath
1 Car
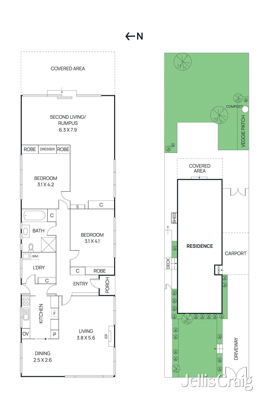
613 m2

Timeless charm, central location and endless possibilities for the future.

In a blissfully quiet street with the best of Reservoir at your fingertips, this c1940s blonde brick home presents a brilliant lifestyle to savour and scope for your future plans, whether it be renovating, extending or possibly developing (STCA). Beyond its solid façade, discover a spacious interior that exudes charm from yesteryear. Comprising of two robed bedrooms, central to a family bathroom,

... Read more

Land size: 613 Square Metres approx.

Inspections

Inspection by appointment

Book Inspection

Location

Property statistics

  • Median house price

    $960,000


  • Days on market*

    30+


  • Victorian auction clearance rate

    71%


  • Auctions last week in Victoria

    513


Data sourced from REIV
* Date published: 04/03/2026

Schools

St Gabriel's School

237 Spring Street Reservoir

0.6km

Reservoir Primary School

Duffy Street Reservoir

0.6km

Ruthven Primary School

Glasgow Avenue Reservoir

1.3km

Reservoir West Primary School

Carrington Road Reservoir

1.4km

The floorplan, measurements of rooms and land size are approximate. Jellis Craig does not accept any liability or responsibility for any inaccuracy in any plan, drawing or rendering used in the advertising material to describe the land and/or the property and/or any described features.
Suburb Report

Your connection to property insights

A reliable snapshot of the property market in Reservoir.

Similar properties