Sold 2/79 Marine Parade, Elwood
Share

2/79 Marine Parade, Elwood

Private Sale - Sold on Dec 27, 2013

$1,410,000

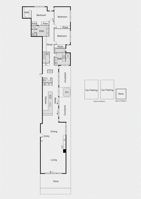
3 Bed
2 Bath
2 Car

Chic Elwood Living at its BEST!

A world of luxury awaits you in this prestigious, house sized approx 196m2, beach front apartment offering the ultimate in low maintenance modern living. Located on the ground floor of this boutique architecturally designed building by Melbourne leading architects SJB, there are just 4 apartments and spanning over one level whilst boasting the very latest in luxury fittings and finishes. All

... Read more

Location

Property statistics

  • Median house price

    $2.3m


  • Days on market

    -


  • Victorian auction clearance rate

    81%


  • Auctions last week in Victoria

    1204


Data sourced from REIV

Schools

St Columba's School

24 Glenhuntly Road Elwood

0.6km

Elwood College

101 Glenhuntly Road Elwood

0.8km

Elwood Primary School

Scott St Elwood

1.2km

St Kilda Primary School

Brighton Rd St Kilda

1.3km

The floorplan, measurements of rooms and land size are approximate. Jellis Craig does not accept any liability or responsibility for any inaccuracy in any plan, drawing or rendering used in the advertising material to describe the land and/or the property and/or any described features.
Suburb Report

Know your postcode

A reliable snapshot of the property market in Elwood.

Similar properties