Sold 2/11 Mihil Street, Preston
Share

2/11 Mihil Street, Preston

Auction Sale - Sold on Oct 30, 2025

$913,000

3 Bed
2 Bath
2 Car
  • Colin Abbas photo

    Colin Abbas

    Licensed Estate Agent & Auctioneer

  • Giorgio Mavrelis photo

    Giorgio Mavrelis

    Sales Consultant

Enjoy a boutique lifestyle with a coveted address

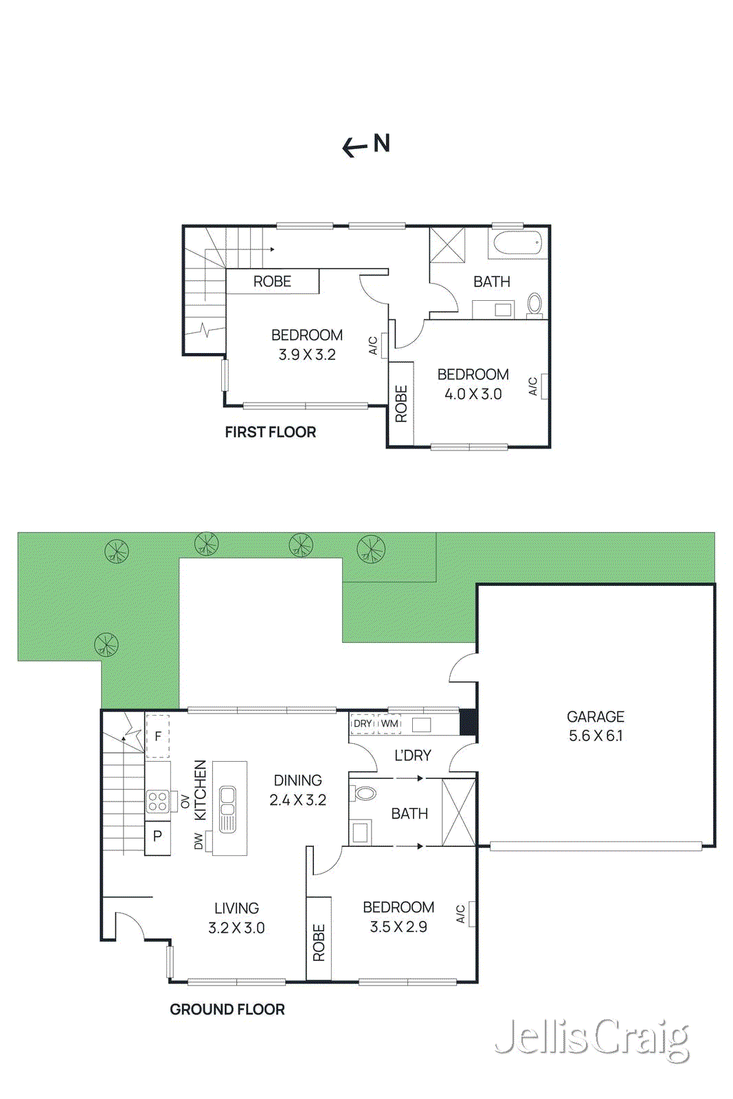
Designed with intention, this ultra-modern three bedroom, two bathroom townhouse provides everything you need to enjoy a low-maintenance lifestyle just south of Bell Street. On a boutique block of only three, the double-storey property incorporates a versatile layout. The open family/meals domain leads to a carefree backyard, as the stone-bench kitchen stars premium Bosch appliances. Upstairs

... Read more

Location

Property statistics

  • Median house price

    $1.2m


  • Days on market*

    7


  • Victorian auction clearance rate

    76%


  • Auctions last week in Victoria

    1354


Data sourced from REIV
* Date published: 22/10/2025

Schools

Penders Grove Primary School

370 Victoria Road Thornbury

0.6km

Preston South Primary School

Hotham Street Preston

0.7km

Sacred Heart School

1 Clifton Grove Preston

1.1km

Thornbury High School

238 Collins Street Thornbury

1.1km

The floorplan, measurements of rooms and land size are approximate. Jellis Craig does not accept any liability or responsibility for any inaccuracy in any plan, drawing or rendering used in the advertising material to describe the land and/or the property and/or any described features.
Suburb Report

Your connection to property insights

A reliable snapshot of the property market in Preston.

Similar properties