Buy 14 Silver Ash Avenue, Ashwood
Share

14 Silver Ash Avenue, Ashwood

Auction - Sat, 14 February 12:00PM

Contact Agent

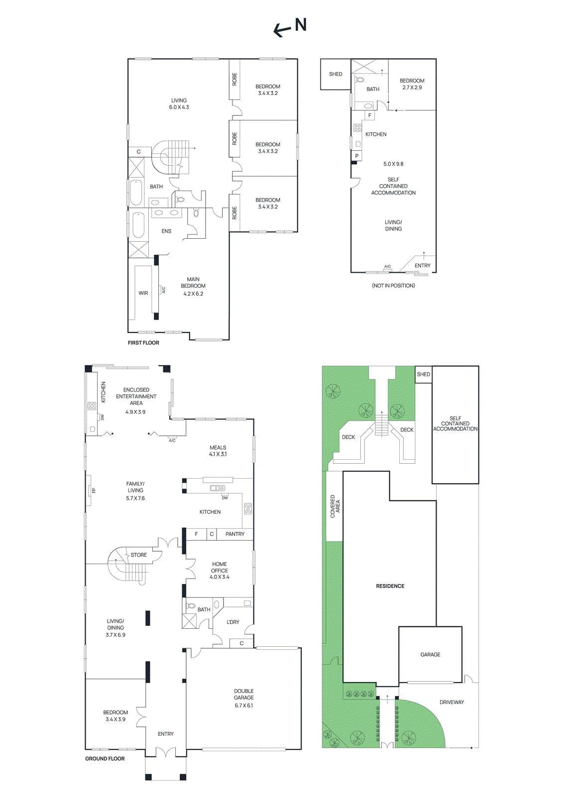
6 Bed
4 Bath
2 Car
1 Study
742 m2

Grand Luxury with Self Contained Unit

Granting a lifestyle of grandeur for the multi-generational family, this luxurious home provides plenty of space for the family with the bonus of a stylish self-contained unit that’s perfect for private in-law accommodation.

Resting on the high side of the street, the home guides you inside with a light-filled formal lounge room adorned with floorboards and high ceilings, set opposite a

... Read more

Land size: 742 Square Metres approx.

Auction

Inspections

Inspection by appointment

Book Inspection

Location

Property statistics

  • Median house price

    $1.5m


  • Days on market

    30+


  • Victorian auction clearance rate

    83%


  • Auctions last week in Victoria

    353


Data sourced from REIV

Schools

Ashwood School

Montpellier Road Ashwood

0.2km

Ashwood Secondary College

Vannam Drive Ashwood

0.5km

Parkhill Primary School

Parkhill Drive Ashwood

0.6km

Frank Dando Sports Academy

33 Raymond St Ashwood

1.0km

The floorplan, measurements of rooms and land size are approximate. Jellis Craig does not accept any liability or responsibility for any inaccuracy in any plan, drawing or rendering used in the advertising material to describe the land and/or the property and/or any described features.
Suburb Report

Your connection to property insights

A reliable snapshot of the property market in Ashwood.

Similar properties