Auction - Wed, 22 October 6:30PM
Inspections from
485

Building and Pest report for
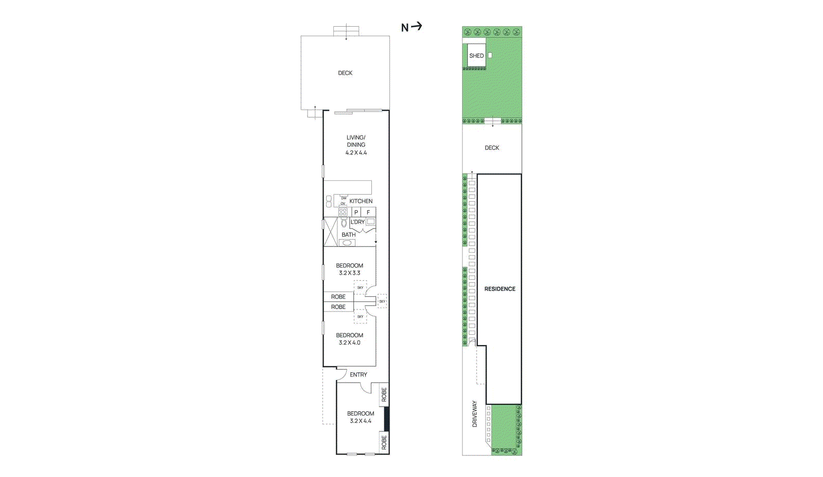
14 Munro Street, Hawthorn East
Inspections from
485
Click below to receive the report from Before You Buy
Receive an independent building and pest report from qualified inspectors at an affordable price through Before You Buy.
ETA: 2-4 Business Days
Auction - Wed, 22 October 6:30PM
Positioned in one of Hawthorn East’s most desirable pockets, this fully renovated double-brick, three-bedroom Edwardian captures classic elegance and contemporary promise. Soaring ceilings, period details and abundant natural light create a warm, inviting ambience across the tranquil lounge and generous kitchen/meals zone, while a sun-drenched west-facing garden offers private outdoor enjoyment.
... Read moreWed 22 Oct.6:30pm
Wednesday, 22 October
6:30pm
Wednesday, 22 October
1:15pm - 1:45pm
Wednesday, 22 October
6:00pm - 6:30pm
Median house price
Days on market
Victorian auction clearance rate
Auctions last week in Victoria
Swinburne Senior Secondary College
505 Burwood Rd Hawthorn
0.8km
Auburn Primary School
Rathmines Road Hawthorn East
1.0km
Camberwell Primary School
290 Camberwell Road Camberwell
1.1km
Camberwell Primary School
Reserve Road Camberwell
1.1km
A reliable snapshot of the property market in Hawthorn East.