Sold 12 Dryden Street, Elwood
Share

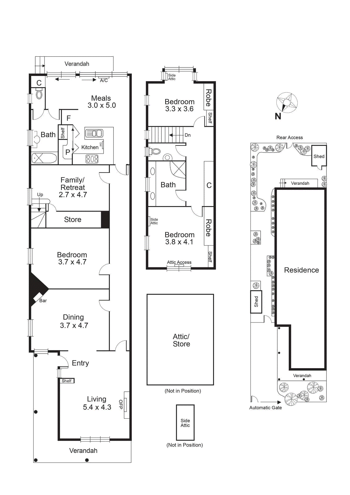
12 Dryden Street, Elwood

Private Sale - Sold on Oct 17, 2025

Contact Agent for Sold Price

3 Bed
2 Bath
183 m2

Rich with Character, Charm & Possibilities!

Rich with character and charm, this delightful weatherboard is ready for its next exciting chapter. Primed for instant enjoyment with scope to update further if desired.

In a quiet low-traffic pocket close to the St Kilda Botanical Gardens, the period home has the luxury of dual living zones, up to four bedrooms (or three and a dining room), stylish kitchen and meals area plus two bright

... Read more

Land size: 284 Square Metres approx.

Location

Property statistics

  • Median house price

    $2.3m


  • Days on market*

    13


  • Victorian auction clearance rate

    76%


  • Auctions last week in Victoria

    1354


Data sourced from REIV
* Date published: 03/10/2025

Schools

St Kilda Primary School

Brighton Rd St Kilda

0.5km

Elwood Primary School

Scott St Elwood

0.8km

Elwood College

101 Glenhuntly Road Elwood

0.9km

St Columba's School

24 Glenhuntly Road Elwood

0.9km

The floorplan, measurements of rooms and land size are approximate. Jellis Craig does not accept any liability or responsibility for any inaccuracy in any plan, drawing or rendering used in the advertising material to describe the land and/or the property and/or any described features.
Suburb Report

Your connection to property insights

A reliable snapshot of the property market in Elwood.

Similar properties