Sold 10 Bellerive Avenue, Mount Waverley
Share

10 Bellerive Avenue, Mount Waverley

Auction Sale - Sold on Feb 26, 2026

Contact Agent for Sold Price

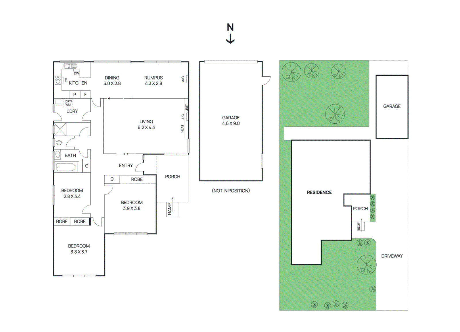
3 Bed
1 Bath
2 Car
669 m2
  • Costa Calaitzis photo

    Costa Calaitzis

    Director & Senior Auctioneer

  • Jimmy Zhang photo

    Jimmy Zhang

    Senior Sales Consultant

Explore Options To Define Your Future in MWSC Zone

A prized opportunity for buyers with vision, this single-level brick veneer classic is ripe and ready for a brand new chapter, with impressive land dimensions measuring 669sqm (approx).

Move in or lease out the comfortable 3 bedroom, 1 bathroom spaces, while considering future options. Utilise your creative flair to either renovate/extend with modern style, or those looking to build anew, will

... Read more

Land size: 669 Square Metres approx.

Location

Property statistics

  • Median house price

    $1.7m


  • Days on market*

    19


  • Victorian auction clearance rate

    79%


  • Auctions last week in Victoria

    1168


Data sourced from REIV
* Date published: 06/02/2026

Schools

Amsleigh Park Primary School

State Street Oakleigh East

1.4km

Christ Our Holy Redeemer School

43 Ferntree Gully Road Oakleigh East

1.6km

Sussex Heights Primary School

Solomon Street Mount Waverley

1.6km

Clayton North Primary School

1714 Dandenong Road Clayton

1.7km

The floorplan, measurements of rooms and land size are approximate. Jellis Craig does not accept any liability or responsibility for any inaccuracy in any plan, drawing or rendering used in the advertising material to describe the land and/or the property and/or any described features.
Suburb Report

Your connection to property insights

A reliable snapshot of the property market in Mount Waverley.

Similar properties