Sold 91 Spray Street, Elwood
Share

91 Spray Street, Elwood

Auction Sale - Sold on Oct 25, 2025

Contact Agent for Sold Price

3 Bed
1 Bath
  • Sam Gamon photo

    Sam Gamon

    Branch Manager & Auctioneer

Stylish Spaces, Period Charm & a Premier Locale

Immerse yourself in an enviable beachside lifestyle thanks to this gorgeous Edwardian home boasting a premier Elwood address. Located within a stroll of village cafes & parks and just a breath to the sand, it offers stylish contemporary interiors behind its captivating character façade. Set beneath soaring ceilings, sophisticated floors lead first to the tranquil main bedroom which boasts a

... Read more

Location

Property statistics

  • Median house price

    $2.3m


  • Days on market

    21


  • Victorian auction clearance rate

    83%


  • Auctions last week in Victoria

    1101


Data sourced from REIV

Schools

Elwood College

101 Glenhuntly Road Elwood

0.1km

St Columba's School

24 Glenhuntly Road Elwood

0.4km

Elwood Primary School

Scott St Elwood

0.6km

Sholem Aleichem College

11 Sinclair St Elsternwick

1.3km

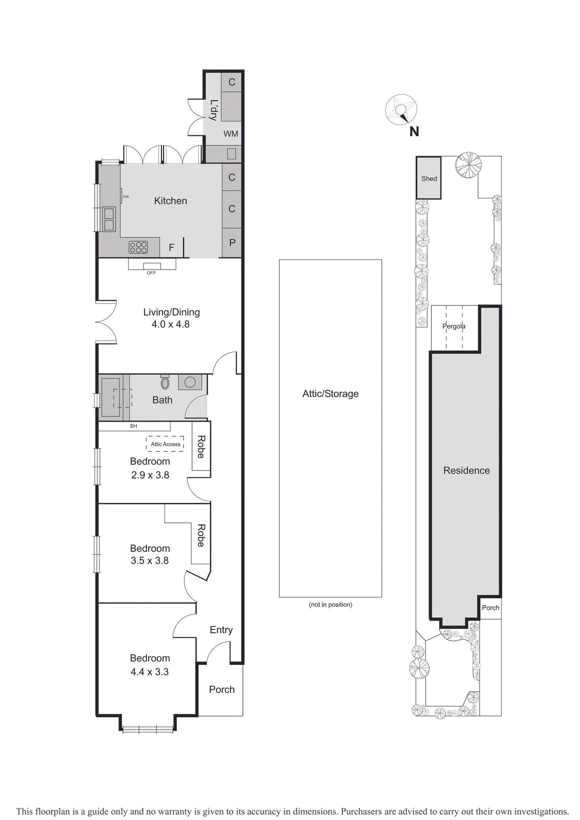
The floorplan, measurements of rooms and land size are approximate. Jellis Craig does not accept any liability or responsibility for any inaccuracy in any plan, drawing or rendering used in the advertising material to describe the land and/or the property and/or any described features.
Suburb Report

Know your postcode

A reliable snapshot of the property market in Elwood.

Similar properties