Sold 8/27 Albion Road, Box Hill
Share

8/27 Albion Road, Box Hill

Auction Sale - Sold on Nov 28, 2025

Contact Agent for Sold Price

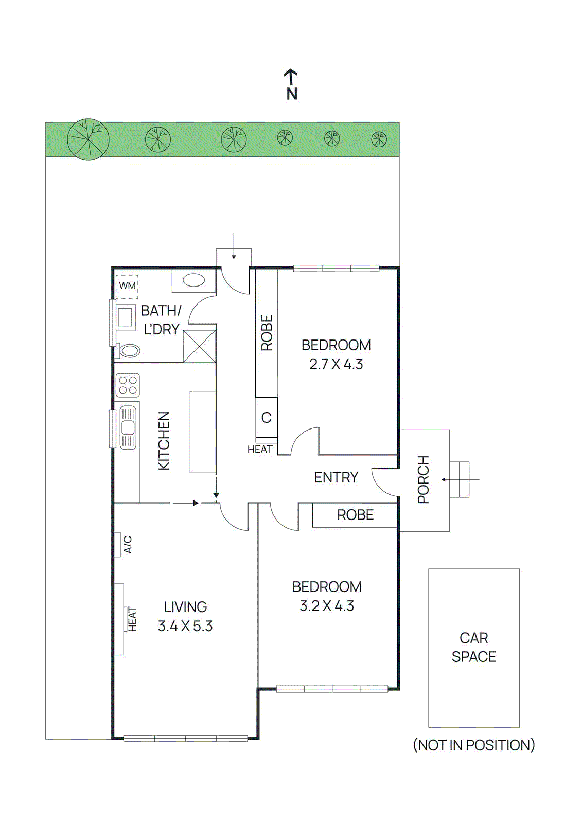
2 Bed
1 Bath
1 Car

Sun-filled, spacious and serene

Privately and exclusively positioned, boasting its own stand-alone site to the rear of a boutique enclave, this impressive residence offers enormous appeal. Boasting light filled, expansive proportions that deliver a low maintenance, single level lifestyle downsizers crave and the generous space that young families love. Showcasing leafy vistas framed by beautiful original windows, this peaceful

... Read more

Location

Property statistics

  • Median house price

    $1.7m


  • Days on market*

    14


  • Victorian auction clearance rate

    81%


  • Auctions last week in Victoria

    1261


Data sourced from REIV
* Date published: 13/11/2025

Schools

Our Lady of Sion College

1065 Whitehorse Road Box Hill

0.8km

St Francis Xavier's School

1087 Whitehorse Road Box Hill

0.8km

Roberts McCubbin Primary School

Birdwood Street Box Hill South

1.0km

Kingswood College

355 Station Street Box Hill

1.0km

The floorplan, measurements of rooms and land size are approximate. Jellis Craig does not accept any liability or responsibility for any inaccuracy in any plan, drawing or rendering used in the advertising material to describe the land and/or the property and/or any described features.
Suburb Report

Your connection to property insights

A reliable snapshot of the property market in Box Hill.

Similar properties