Buy 73 Ramsden Street, Clifton Hill
Share
JellisCraig First

73 Ramsden Street, Clifton Hill

For Sale - Exclusive to Jellis Craig

$1,450,000

2 Bed
1 Bath
1 Car

Captivating village character & superb modern comfort

New Listing

The attractive period profile of this impressive solid brick terrace reflects the timeless elegance of its captivating interior character enhanced by superbly-executed contemporary updates and a sizable rear courtyard with laneway access. Secluded and serene at the heart of the Clifton Hill village, this inviting Edwardian residence presents an exceptional opportunity to step

... Read more

Inspections

Inspection by appointment

Book Inspection

Location

Property statistics

  • Median house price

    $1.7m


  • Days on market

    1


  • Victorian auction clearance rate


  • Auctions last week in Victoria

    2


Data sourced from REIV

Schools

Spensley Street Primary School

193 Spensley Street Clifton Hill

0.7km

Clifton Hill Primary School

185 Gold St Clifton Hill

0.8km

St John's School

77 Queens Parade Clifton Hill

0.8km

Fitzroy High School

Falconer Street Fitzroy North

1.1km

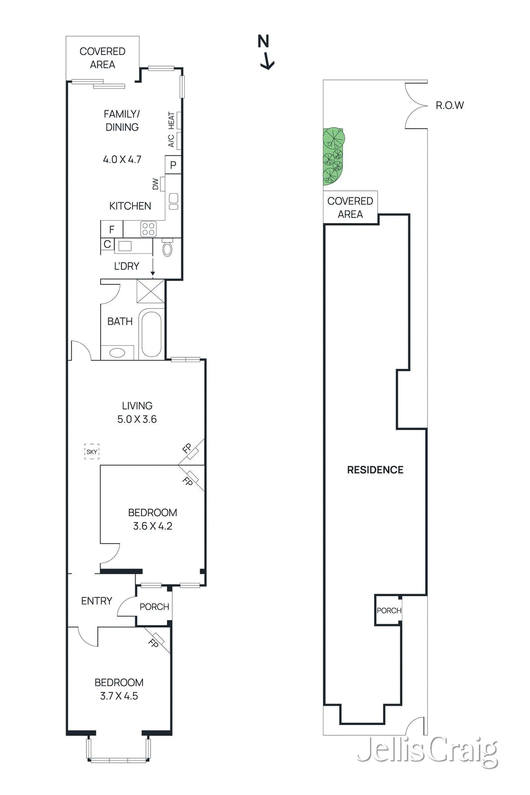
The floorplan, measurements of rooms and land size are approximate. Jellis Craig does not accept any liability or responsibility for any inaccuracy in any plan, drawing or rendering used in the advertising material to describe the land and/or the property and/or any described features.

Want to sell your property only on jelliscraig.com.au?

We have over 2 million contacts in the database that we can contact about your exclusive listing.

Learn more
Suburb Report

Know your postcode

A reliable snapshot of the property market in Clifton Hill.

Similar properties