Sold 67 Ogrady Street, Clifton Hill
Share

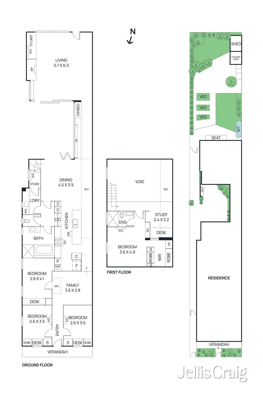
67 Ogrady Street, Clifton Hill

Private Sale - Sold on Mar 25, 2026

Contact Agent for Sold Price

4 Bed
2 Bath
  • Antony Harbor photo

    Antony Harbor

    Sales Consultant & Auctioneer

  • Antony Woodley photo

    Antony Woodley

    Partner, Licensed Estate Agent & Auctioneer

  • Angus Greene photo

    Angus Greene

    Sales Consultant

Expansive, light & airy, architect-redesigned sanctuary

For Sale by Expressions of Interest closing Monday 30th March at 5:00pm

The classic double block-fronted façade of this expansive family residence reveals a sensational contemporary setting over 2 light-laden levels engaging seamlessly with its lush surrounding garden. Brilliantly redefined by award-winning po-co Architecture, this stunning 4 bedroom and study home retains its timeless heritage

... Read more

Location

Property statistics

  • Median house price

    $1.7m


  • Days on market*

    20


  • Victorian auction clearance rate

    75%


  • Auctions last week in Victoria

    865


Data sourced from REIV
* Date published: 04/03/2026

Schools

Spensley Street Primary School

193 Spensley Street Clifton Hill

0.3km

Fitzroy High School

Falconer Street Fitzroy North

1.1km

St John's School

77 Queens Parade Clifton Hill

1.1km

Clifton Hill Primary School

185 Gold St Clifton Hill

1.2km

The floorplan, measurements of rooms and land size are approximate. Jellis Craig does not accept any liability or responsibility for any inaccuracy in any plan, drawing or rendering used in the advertising material to describe the land and/or the property and/or any described features.
Suburb Report

Your connection to property insights

A reliable snapshot of the property market in Clifton Hill.

Similar properties