Buy 603 Station Street, Carlton North
Share
JellisCraig First

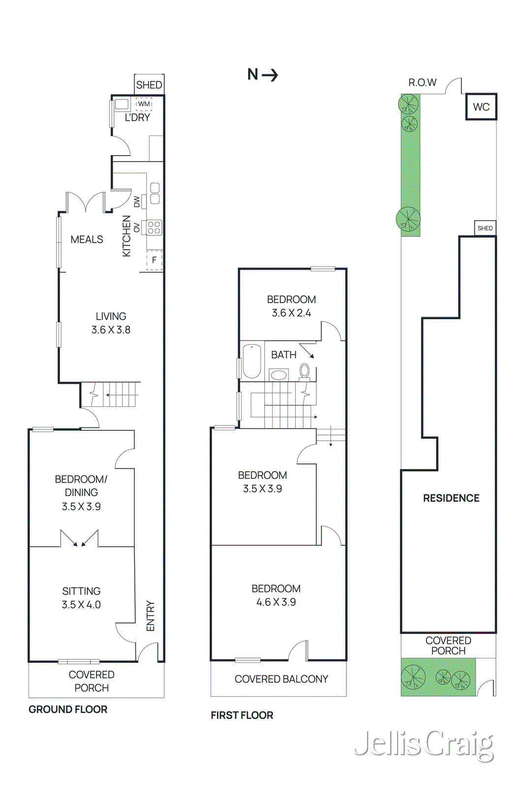
603 Station Street, Carlton North

For Sale - Exclusive to Jellis Craig

$1,650,000 - $1,800,000

4 Bed
1 Bath
  • Nicholas Corby photo

    Nicholas Corby

    Partner & Licensed Estate Agent

Impressive proportions, period style & rare potential

Forthcoming Auction

A prime corner position in a historic Victorian row is the sought-after setting for this large balcony terrace c1886 that standing proudly behind an evocative Boom-style façade presents a rare and exciting opportunity on one of Carlton North’s most coveted streets. Semi-detached, light-filled and immediately comfortable, this highly-attractive residence having been recently

... Read more

Inspections

Inspection by appointment

Book Inspection

Location

Property statistics

  • Median house price

    $1.8m


  • Days on market

    1


  • Victorian auction clearance rate

    82%


  • Auctions last week in Victoria

    1314


Data sourced from REIV

Schools

Princes Hill Primary School

Pigdon Street Carlton North

0.3km

Brunswick South Primary School

56 Brunswick Road Brunswick East

0.5km

Deutsche Schule Melbourne

96 Barkly Street North Fitzroy

0.7km

Our Lady Help of Christians School

26 Miller Street Brunswick East

0.7km

The floorplan, measurements of rooms and land size are approximate. Jellis Craig does not accept any liability or responsibility for any inaccuracy in any plan, drawing or rendering used in the advertising material to describe the land and/or the property and/or any described features.

Want to sell your property only on jelliscraig.com.au?

We have over 2 million contacts in the database that we can contact about your exclusive listing.

Learn more
Suburb Report

Know your postcode

A reliable snapshot of the property market in Carlton North.

Similar properties