Sold 52 Victoria Street, Fitzroy
Share

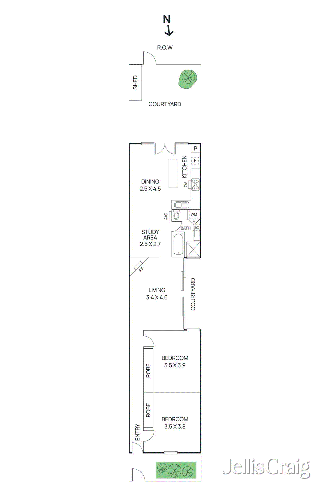
52 Victoria Street, Fitzroy

Private Sale - Sold on Apr 6, 2026

$1,295,000

2 Bed
1 Bath
  • Rob Norris photo

    Rob Norris

    Sales Consultant & Auctioneer

  • Charles Atkins photo

    Charles Atkins

    Partner & Auctioneer

  • Johanna Doherty photo

    Johanna Doherty

    Licensed Estate Agent & Auctioneer

Fabulous Fitzroy haven just footsteps to Brunswick Street

For Sale via Expressions of Interest

Fitzroy is Melbourne’s first suburb and today its most exciting making this irresistible Victorian terrace a fitting expression of then and now - character at the front, modern comfort within and Brunswick Street’s celebrated energy quite literally at the doorstep.

Be surrounded by the city’s coolest café culture and love the lifestyle with this

... Read more

Location

Property statistics

  • Median house price

    $1.7m


  • Days on market*

    24


  • Victorian auction clearance rate

    73%


  • Auctions last week in Victoria

    841


Data sourced from REIV
* Date published: 12/03/2026

Schools

Sacred Heart School

107 King William Street Fitzroy

0.4km

Fitzroy Primary School

319 George Street Fitzroy

0.5km

Academy of Mary Immaculate

88 Nicholson Street Fitzroy

0.5km

Carlton Gardens Primary School

215 Rathdowne St Carlton

0.7km

The floorplan, measurements of rooms and land size are approximate. Jellis Craig does not accept any liability or responsibility for any inaccuracy in any plan, drawing or rendering used in the advertising material to describe the land and/or the property and/or any described features.
Suburb Report

Your connection to property insights

A reliable snapshot of the property market in Fitzroy.

Similar properties