Buy 3 Faversham Road, Canterbury
Share

3 Faversham Road, Canterbury

Auction - Thu, 26 February 6:00PM

$2,500,000 - $2,600,000

4 Bed
2 Bath
2 Car
1 Study
659 m2

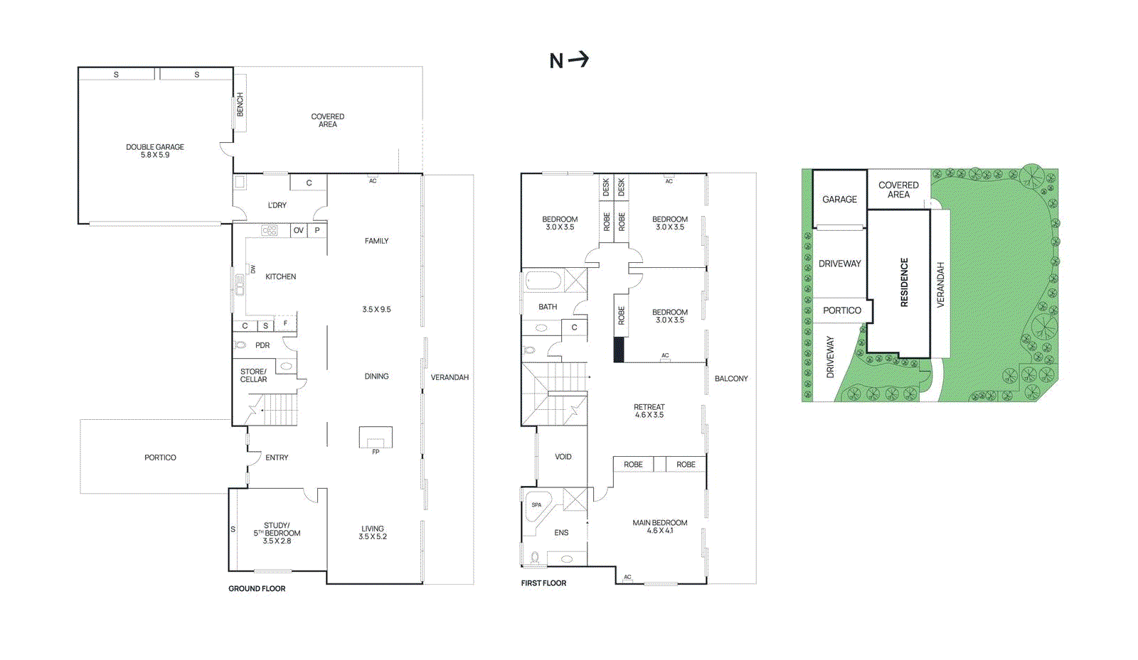
Unparalleled sunlight on a desirable corner

Designed to capture the northern sun in nearly every room, this distinctive four bedroom plus study two bathroom family home brings a whole new level of light to your lifestyle. Warm, inviting and surrounded by beautiful aspects of greenery, this architectural standout features fabulous open plan living and dining with a fireplace dividing the second downstairs living space and a super spacious

... Read more

Land size: 659 Square Metres approx.

Thinking of selling?

Auction

Inspections

Location

Property statistics

  • Median house price

    $3.8m


  • Days on market

    22


  • Victorian auction clearance rate

    80%


  • Auctions last week in Victoria

    623


Data sourced from REIV

Schools

Canterbury Primary School

Molesworth Street Canterbury

0.9km

Strathcona Baptist Girls' Grammar

34 Scott Street Canterbury

1.0km

Chatham Primary School

Weybridge Street Surrey Hills

1.0km

Fintona Girls' School

79 Balwyn Rd Balwyn

1.0km

The floorplan, measurements of rooms and land size are approximate. Jellis Craig does not accept any liability or responsibility for any inaccuracy in any plan, drawing or rendering used in the advertising material to describe the land and/or the property and/or any described features.
Suburb Report

Your connection to property insights

A reliable snapshot of the property market in Canterbury.

Similar properties