Sold 3/30-32 Melissa Street, Strathmore
Share

3/30-32 Melissa Street, Strathmore

Private Sale - Sold on Dec 3, 2025

$740,000

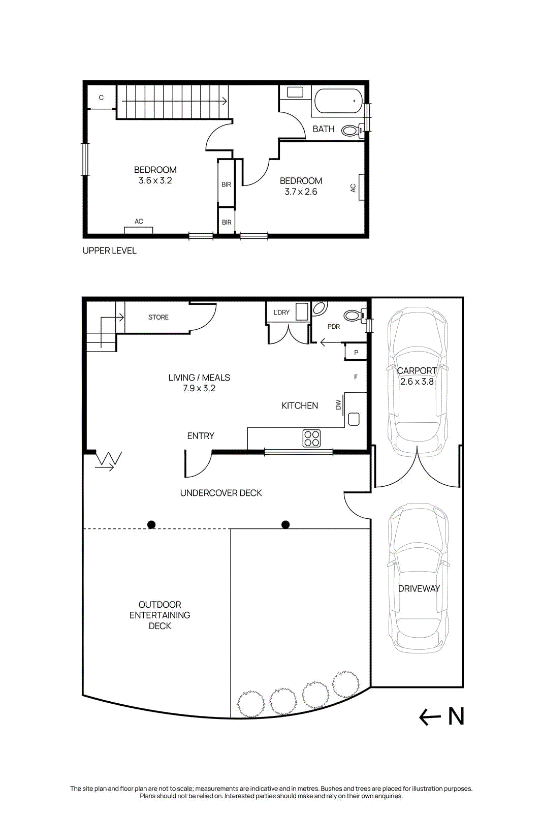
2 Bed
1 Bath
2 Car

Impressive Indoor Style with Amazing Outdoor Space!

Low-maintenance lifestyle perfection, this two-level townhouse sure sets itself apart from all others with its first-class renovations, sensational outdoors to enjoy and prime location with every Strathmore advantage. High ceilings across both levels, the home’s light-filled interior showcases two bedrooms (large master) both with built-in robes, together with an updated central bathroom and

... Read more

Location

Property statistics

  • Median house price

    $1.6m


  • Days on market*

    30+


  • Victorian auction clearance rate

    76%


  • Auctions last week in Victoria

    1354


Data sourced from REIV
* Date published: 28/10/2025

Schools

Strathmore Primary School

Lloyd Street Strathmore

0.8km

St Francis de Sales School

626 Pascoe Vale Road Oak Park

1.1km

Strathmore North Primary School

Mascoma Street Strathmore

1.1km

Strathmore Secondary College

400 Pascoe Vale Road Strathmore

1.3km

The floorplan, measurements of rooms and land size are approximate. Jellis Craig does not accept any liability or responsibility for any inaccuracy in any plan, drawing or rendering used in the advertising material to describe the land and/or the property and/or any described features.
Suburb Report

Your connection to property insights

A reliable snapshot of the property market in Strathmore.

Similar properties