Buy 3/2 Prismall Street, Altona North
Share

3/2 Prismall Street, Altona North

Auction - Sat, 25 October 10:30AM

$750,000 - $790,000

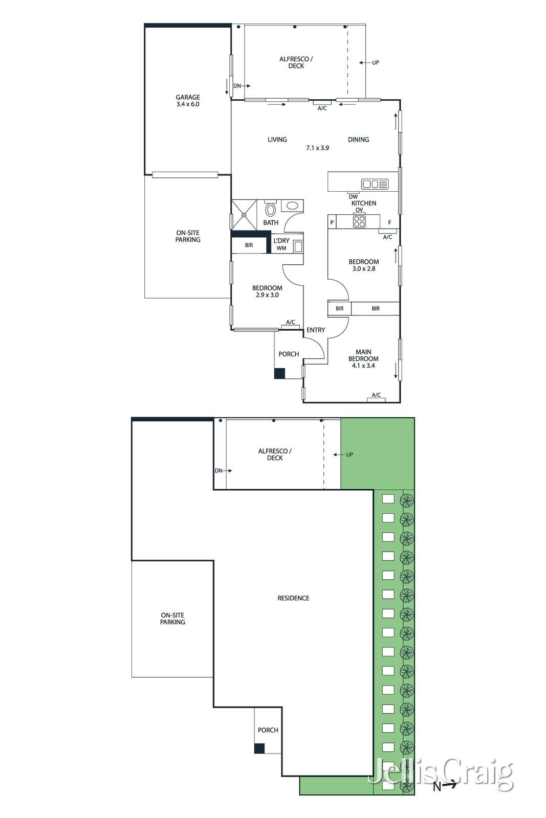
3 Bed
1 Bath
2 Car

Newport Fringe - quality and character of ageless appeal

A single level design offering quality and character that clearly endure, this inviting residence is desirably set at the rear of its boutique development, ensuring privacy is preserved and peace and quiet are guaranteed in a great location that puts so many Newport attractions within moments’ reach. Impeccably maintained spaces that catch lots of natural light include a living and dining domain

... Read more

Auction

Sat 25 Oct.10:30am

Inspections

Sat 4 Oct.11:45am - 12:15pm

Location

Property statistics

  • Median house price

    $953,000


  • Days on market

    3


  • Victorian auction clearance rate

    88%


  • Auctions last week in Victoria

    145


Data sourced from REIV

Schools

Bayside P-12 College High School (Years 10-12)

33-43 Blenheim Rd Newport

0.2km

Newport Gardens Primary School

39 Maddox Rd Newport

0.6km

St Leo the Great School

315 Mason Street Altona North

1.0km

Altona North Primary School

Cresser Street Altona North

1.2km

The floorplan, measurements of rooms and land size are approximate. Jellis Craig does not accept any liability or responsibility for any inaccuracy in any plan, drawing or rendering used in the advertising material to describe the land and/or the property and/or any described features.
Suburb Report

Know your postcode

A reliable snapshot of the property market in Altona North.

Similar properties