Sold 28 Kingfisher Place, South Morang
Share

28 Kingfisher Place, South Morang

Auction Sale - Sold on Nov 7, 2025

$645,000

3 Bed
1 Bath
2 Car
314 m2

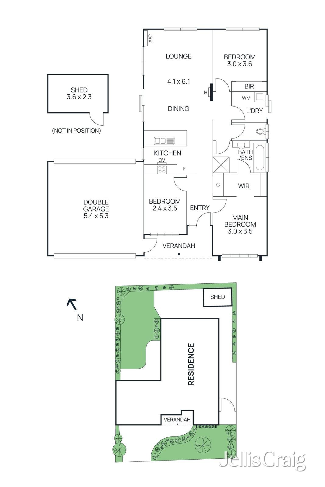
Freshly Updated and Ready to Enjoy!

Jellis Craig. Perfectly positioned in a quiet, family-friendly pocket, this freshly updated three-bedroom, one-bathroom home offers comfortable and convenient living with nothing left to do but move in and enjoy.

Set on approximately 314 m², the home has been tastefully refreshed throughout, giving it a light, bright and modern feel. The well-designed floor plan features a spacious open plan

... Read more

Land size: 314 Square Metres approx.

Location

Property statistics

  • Median house price

    $821,000


  • Days on market*

    7


  • Victorian auction clearance rate

    79%


  • Auctions last week in Victoria

    1015


Data sourced from REIV
* Date published: 30/10/2025

Schools

Morang South Primary School

77 Gorge Road South Morang

0.5km

Marymede Catholic College

60 Williamsons Road South Morang

1.7km

Plenty Parklands Primary School

48 Blossom Park Drive Mill Park

2.1km

Mill Park Secondary College

Moorhead Drive Mill Park

3.1km

The floorplan, measurements of rooms and land size are approximate. Jellis Craig does not accept any liability or responsibility for any inaccuracy in any plan, drawing or rendering used in the advertising material to describe the land and/or the property and/or any described features.
Suburb Report

Your connection to property insights

A reliable snapshot of the property market in South Morang.

Similar properties