Auction - Sat, 23 May 1:00PM
$1,100,000 - $1,200,000
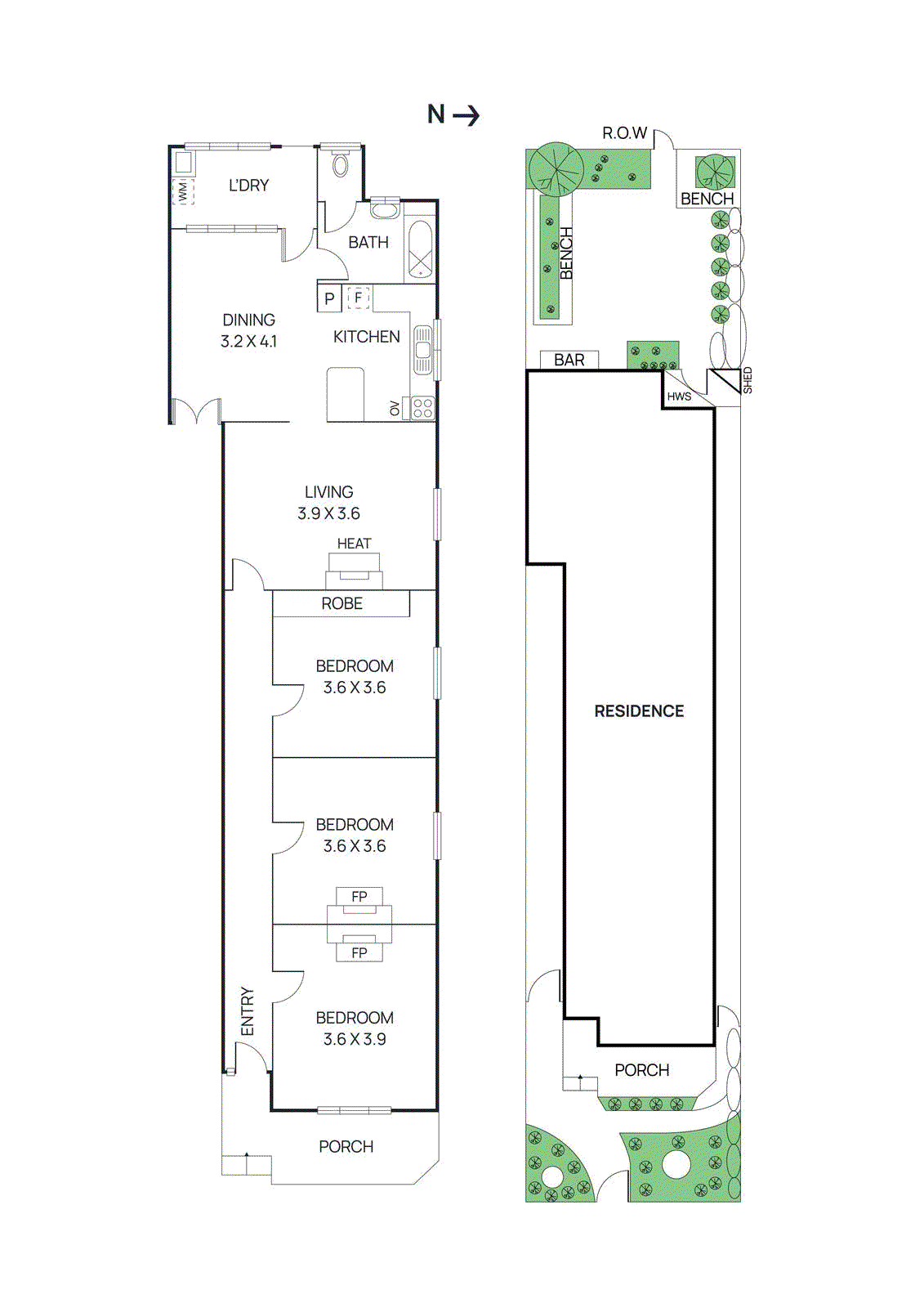
3 Bed
1 Bath
Period Charm, Inner-North Ease
In a quiet Coburg cul-de-sac where homes are tightly held and neighbours still wave hello, this freestanding period residence brings together old-school warmth and everyday ease in all the right ways. Behind its charming façade and pretty garden setting, it’s a home with instant feel-good appeal.
A traditional side hallway introduces three generous bedrooms, each with the proportions that make
... Read moreAuction
Sat 23 May.1:00pm
Saturday, 23 May
1:00pm
Inspections
Saturday, 2 May
9:45am - 10:15am
Wednesday, 6 May
5:15pm - 5:30pm
Saturday, 9 May
10:45am - 11:15am
Location
Property statistics
-
Median house price
$1.3m
-
Days on market*
1
-
Victorian auction clearance rate
77%
-
Auctions last week in Victoria
145
Data sourced from REIV
*
Date published: 29/04/2026
Schools
St Margaret Mary's School
47-49 Mitchell Street Brunswick North
0.7km
St Bernard's School
36 Patterson Street Coburg East
1.0km
Coburg Primary School
98 Bell Street Coburg
1.4km
Coburg West Primary School
Reynard Street Coburg
1.5km
The floorplan, measurements of rooms and land size are approximate. Jellis Craig does not accept any liability or responsibility for any inaccuracy in any plan, drawing or rendering used in the advertising material to describe the land and/or the property and/or any described features.
Suburb Report
Your connection to property insights
A reliable snapshot of the property market in Coburg.
Similar properties