Sold 23 Baker Street, St Kilda
Share

23 Baker Street, St Kilda

Auction Sale - Sold on Jun 16, 2018

Contact Agent for Sold Price

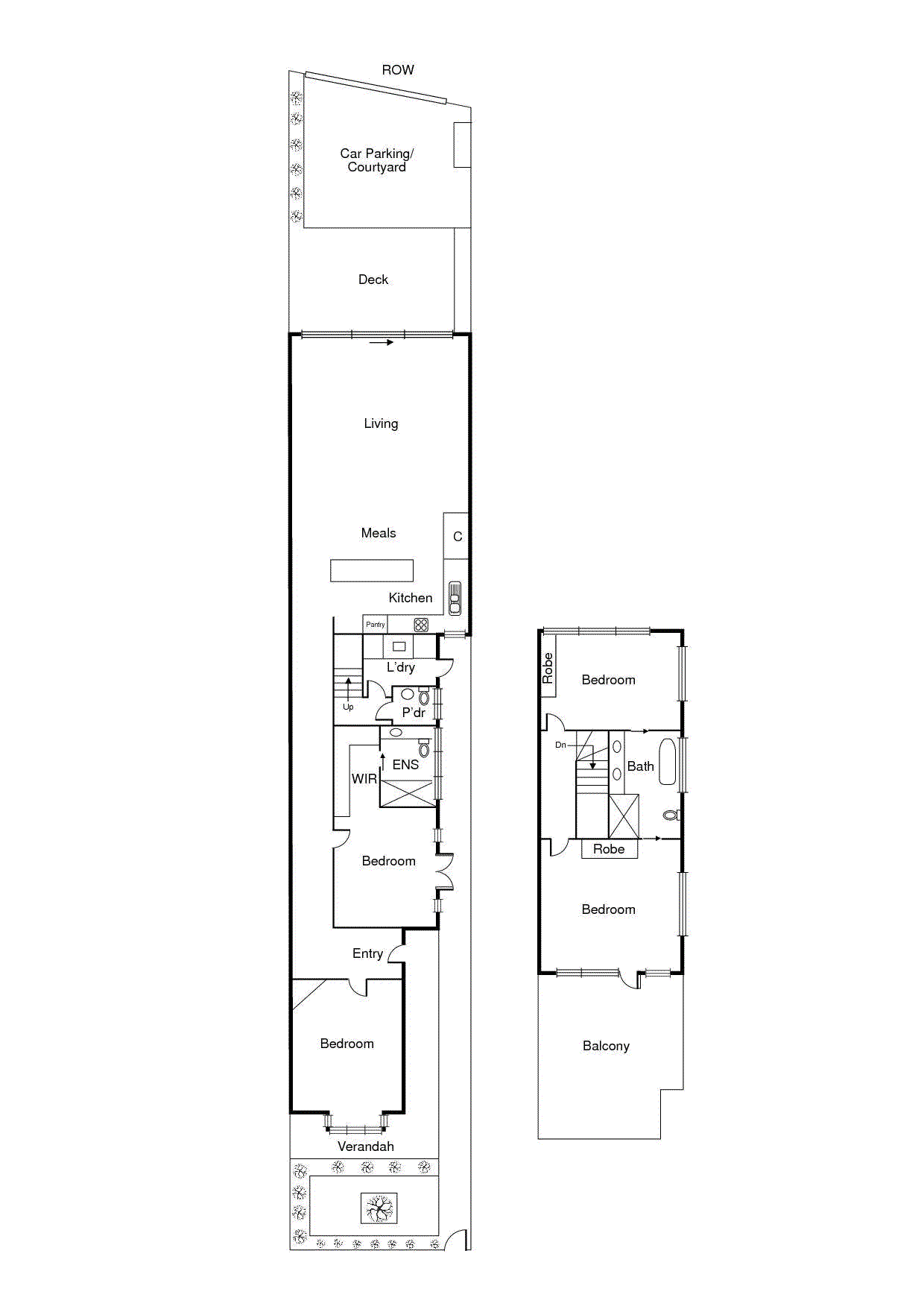
4 Bed
2 Bath
1 Car
  • Sam Gamon photo

    Sam Gamon

    Branch Manager & Auctioneer

Perfect Blend of Lifestyle and Locale

Concealed behind the traditional facade of this Edwardian duplex beats the heart of a contemporary family home. Painstakingly renovated and extended, each feature and every material working together with the fabulous beachside location to guarantee an exceptional lifestyle.

Industrial concrete, accent LED lighting and a clever use of glass form the backbone of this beautiful home which delivers

... Read more

Location

Property statistics

  • Median house price

    $1.6m


  • Days on market

    -


  • Victorian auction clearance rate

    83%


  • Auctions last week in Victoria

    1101


Data sourced from REIV

Schools

St Columba's School

24 Glenhuntly Road Elwood

0.9km

St Kilda Primary School

Brighton Rd St Kilda

0.9km

Elwood College

101 Glenhuntly Road Elwood

1.1km

Elwood Primary School

Scott St Elwood

1.3km

The floorplan, measurements of rooms and land size are approximate. Jellis Craig does not accept any liability or responsibility for any inaccuracy in any plan, drawing or rendering used in the advertising material to describe the land and/or the property and/or any described features.
Suburb Report

Know your postcode

A reliable snapshot of the property market in St Kilda.

Similar properties