Auction - Sat, 18 April 10:30AM
$1,150,000 - $1,250,000
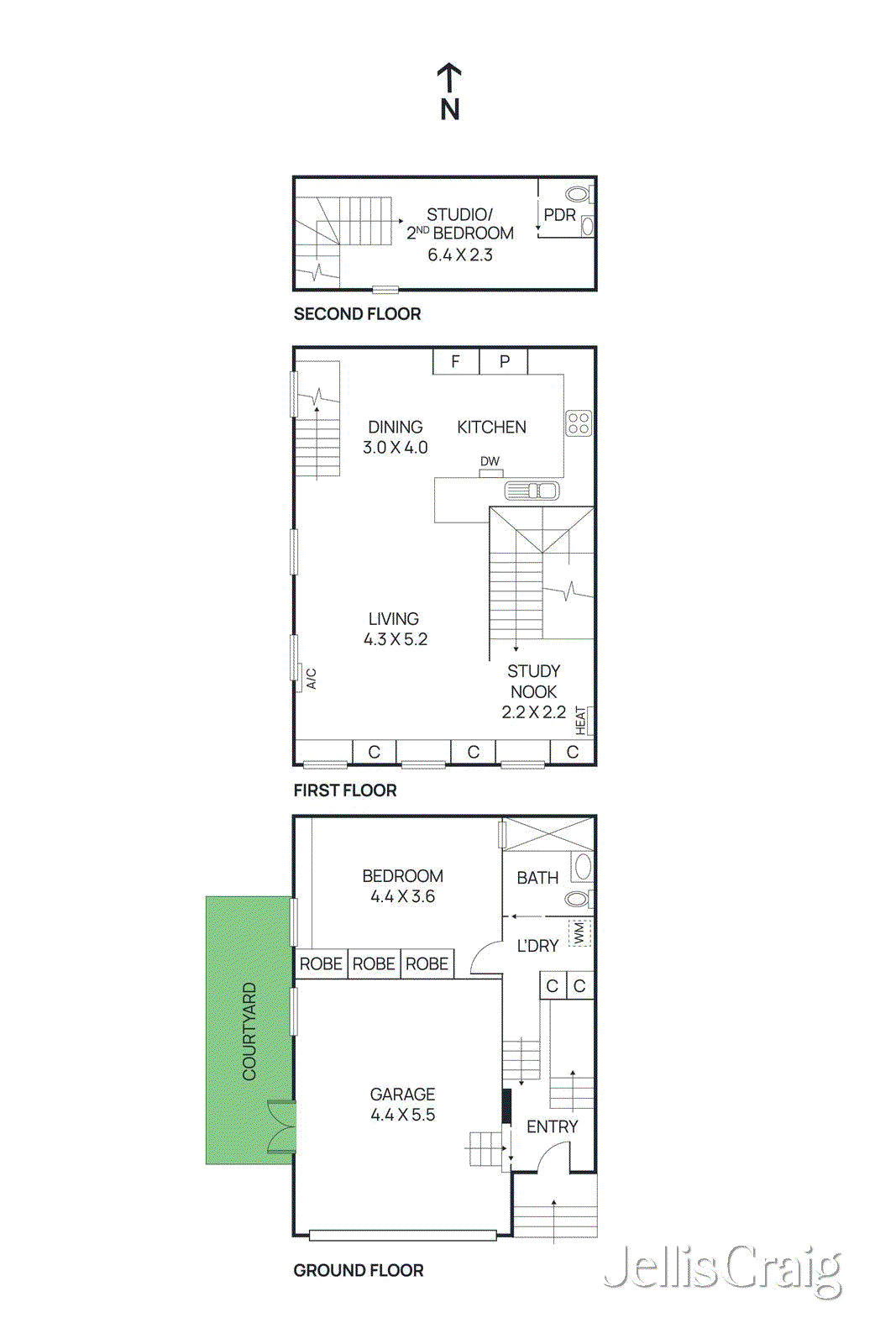
2 Bed
1 Bath
1 Car
Amazing light & airy warehouse with a courtyard & garage
Direct entry from Argyle Street including a remote-control garage with internal access reveals this amazing, tri-level warehouse conversion’s inspiring combination of industrial character and contemporary sophistication under a soaring cathedral-style ceiling. The iconic MacRobertson’s Chocolate Factory c1891 is the historic setting in the heart of Fitzroy for this distinctive solid brick
... Read moreAuction
Sat 18 Apr.10:30am
Saturday, 18 April
10:30am
Inspections
Wednesday, 15 April
5:30pm - 6:00pm
Thursday, 16 April
5:30pm - 6:00pm
Saturday, 18 April
10:00am - 10:30am
Location
Property statistics
-
Median house price
$1.7m
-
Days on market*
21
-
Victorian auction clearance rate
71%
-
Auctions last week in Victoria
587
Data sourced from REIV
*
Date published: 25/03/2026
Schools
Fitzroy Primary School
319 George Street Fitzroy
0.2km
St Joseph's School
46 Otter Street Collingwood
0.3km
Clifton Hill Primary School
185 Gold St Clifton Hill
0.8km
Sacred Heart School
107 King William Street Fitzroy
0.8km
The floorplan, measurements of rooms and land size are approximate. Jellis Craig does not accept any liability or responsibility for any inaccuracy in any plan, drawing or rendering used in the advertising material to describe the land and/or the property and/or any described features.
Suburb Report
Your connection to property insights
A reliable snapshot of the property market in Fitzroy.
Similar properties