Auction - Sat, 15 November 11:00AM
Inspections from
529

Building and Pest report for
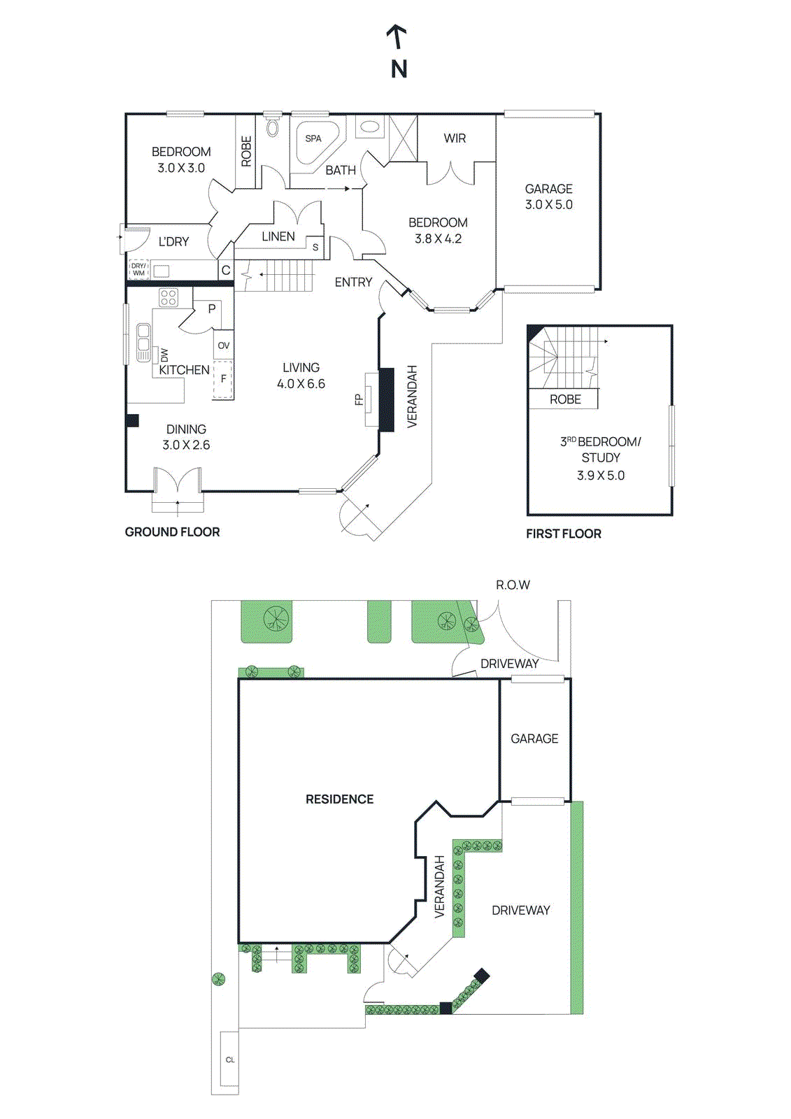
2/4 Lodge Road, Camberwell
Inspections from
529
Click below to receive the report from Before You Buy
Receive an independent building and pest report from qualified inspectors at an affordable price through Before You Buy.
ETA: 2-4 Business Days
Auction - Sat, 15 November 11:00AM
A serene position at the rear of just two, this captivating two storey Federation-style home offers an easily maintained lifestyle in a secluded setting. Set in private gardens in a premium location, walk to Fordham Village, Hartwell station, Leo's supermarket, parks and schools, with zoning to Hartwell Primary and Camberwell High School. Full of beautiful natural light, the open plan living and
... Read moreLand size: 258 Square Metres approx.
Sat 15 Nov.11:00am
Saturday, 15 November
11:00am
Saturday, 25 October
11:00am - 11:30am
Thursday, 30 October
5:30pm - 6:00pm
Saturday, 1 November
11:00am - 11:30am
Thursday, 6 November
12:30pm - 1:00pm
Median house price
Days on market
Victorian auction clearance rate
Auctions last week in Victoria
Hartwell Primary School
Milverton St Camberwell
0.7km
St Dominic's School
145 Highfield Road Camberwell East
0.9km
St Cecilia's School
4 Van Ness Avenue Glen Iris
1.2km
Camberwell South Primary School
Peate Avenue Glen Iris
1.4km
A reliable snapshot of the property market in Camberwell.