Buy 2/152 Warrigal Road, Mentone
Share

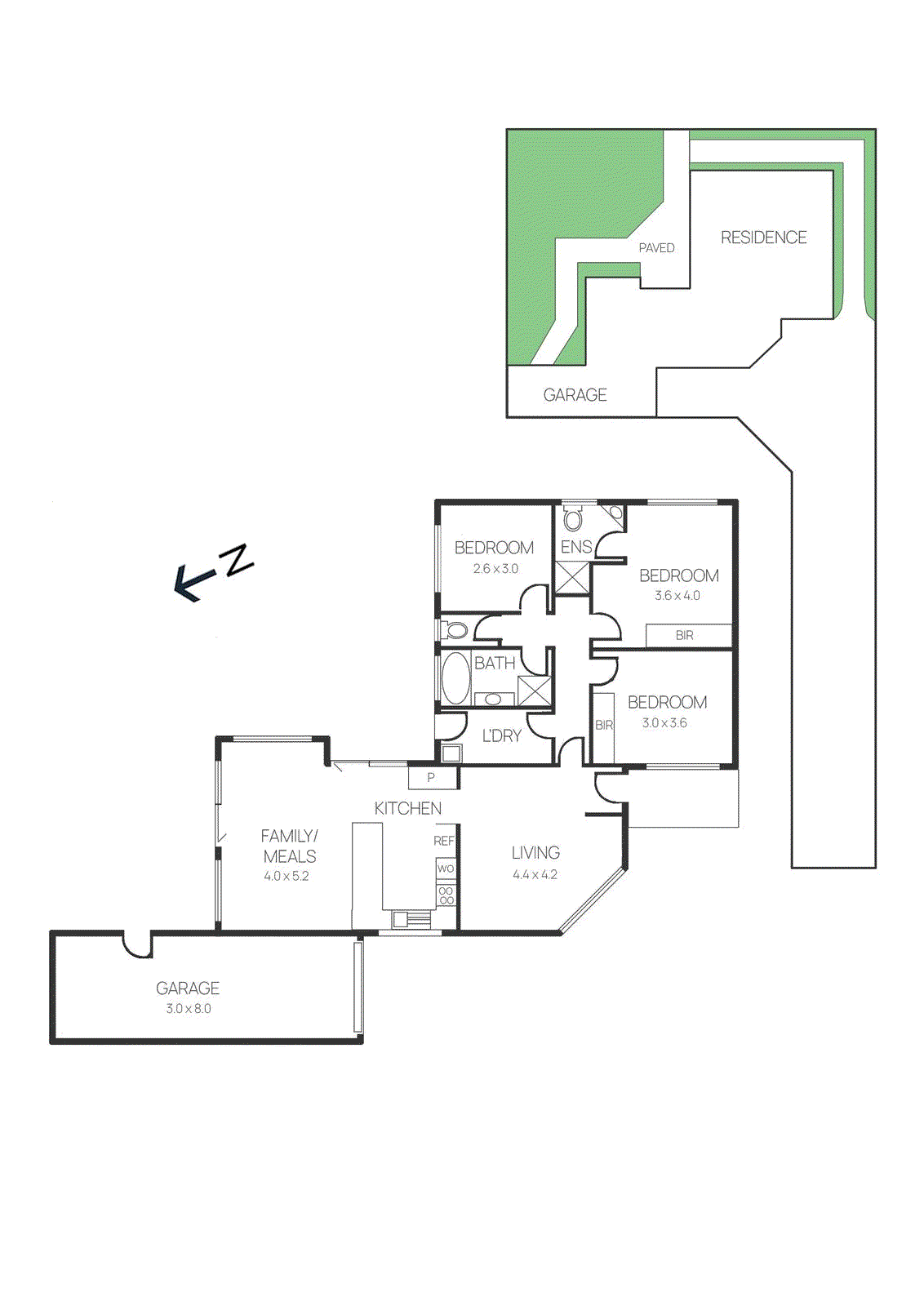
2/152 Warrigal Road, Mentone

Auction - Sat, 16 May 1:00PM

$1,000,000 - $1,100,000

3 Bed
2 Bath
2 Car

Spacious, Private and Perfectly Positioned

Privately tucked away at the rear of the allotment, this beautifully presented three-bedroom, two-bathroom residence offers the perfect combination of space, privacy and low-maintenance living in one of Mentone’s most convenient locations.

Thoughtfully designed for effortless living, the spacious floorplan offers multiple living zones and a seamless indoor-outdoor connection, making it ideal

... Read more

Auction

Inspections

Location

Property statistics

  • Median house price

    $1.4m


  • Days on market*

    2


  • Victorian auction clearance rate

    71%


  • Auctions last week in Victoria

    587


Data sourced from REIV
* Date published: 15/04/2026

Schools

St Patrick's School

16 Childers Street Mentone

0.5km

Mentone Primary School

Childers Street Mentone

0.5km

Kilbreda College

118 Mentone Parade Mentone

0.8km

Mentone Park Primary School

Broome Avenue Mentone

1.1km

The floorplan, measurements of rooms and land size are approximate. Jellis Craig does not accept any liability or responsibility for any inaccuracy in any plan, drawing or rendering used in the advertising material to describe the land and/or the property and/or any described features.
Suburb Report

Your connection to property insights

A reliable snapshot of the property market in Mentone.

Similar properties