For Sale
Inspections from
495

Building and Pest report for
18 Winmalee Road, Balwyn
Inspections from
495
Click below to receive the report from Before You Buy
Receive an independent building and pest report from qualified inspectors at an affordable price through Before You Buy.
ETA: 2-4 Business Days
For Sale
Expressions Of Interest Closing 10 November at 5pm
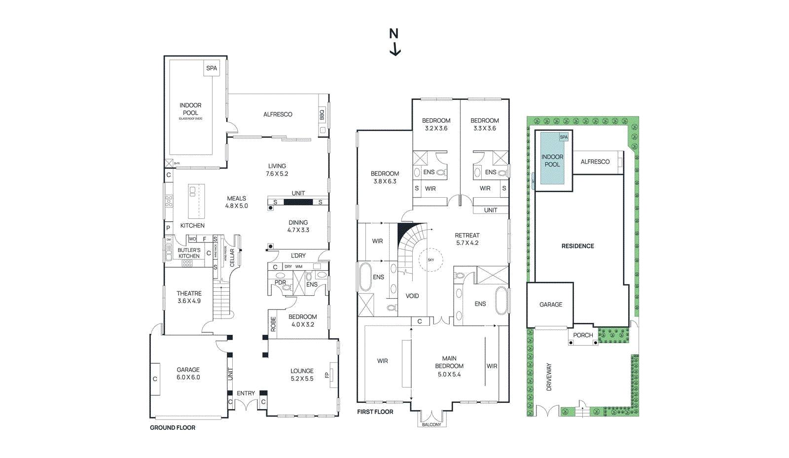
Setting new standards in French inspired opulence, this extravagant five bedroom five bathroom family masterpiece represents the pinnacle of low maintenance perfection. Grand with its 3.3m approx. ceilings downstairs to go with the intricate cornices, sparkling chandeliers, parquetry floors, high skirting boards and wall detailing, this glamorous
... Read moreLand size: 637 Square Metres approx.
Thursday, 23 October
10:30am - 11:00am
Saturday, 25 October
10:40am - 11:10am
Median house price
Days on market
Victorian auction clearance rate
Auctions last week in Victoria
Balwyn Primary School
Balwyn Road Balwyn
0.5km
Belmore School
Stroud Street Balwyn
0.6km
St Pauls College
3/13 Brenbeal St Balwyn
0.6km
All Hallows School
3 Brenbeal Street Balwyn
0.6km
A reliable snapshot of the property market in Balwyn.