Buy 17 Dianella Walkway, Brunswick East
Share

17 Dianella Walkway, Brunswick East

For Sale

$750,000 - $800,000

2 Bed
2 Bath
1 Car
  • Cameron Pritchard photo

    Cameron Pritchard

    Partner & Auctioneer

  • Matthew Layburn photo

    Matthew Layburn

    Senior Sales Consultant

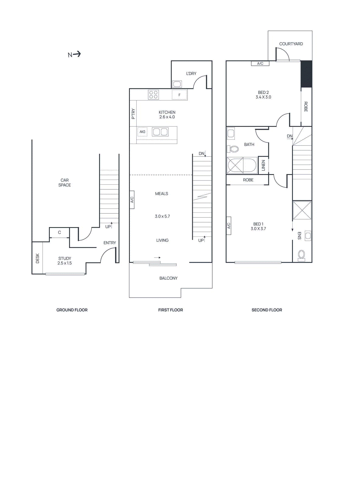
Stylish three level inner city living

Expressions Of Interest closing Tuesday 17 February 2026 at 5pm

Set across three levels, this townhouse delivers inner city living with the ease of low maintenance, ideal for those who value lifestyle and convenience. The ground floor provides secure undercover parking with direct internal access along with a functional study nook, perfect for those studying or working from home. The first floor

... Read more

Inspections

Location

Property statistics

  • Median house price

    $1.5m


  • Days on market

    1


  • Victorian auction clearance rate


  • Auctions last week in Victoria

    15


Data sourced from REIV

Schools

Our Lady Help of Christians School

26 Miller Street Brunswick East

0.1km

Brunswick South Primary School

56 Brunswick Road Brunswick East

0.6km

Merri Creek Primary School

Miller Street Fitzroy North

0.6km

Deutsche Schule Melbourne

96 Barkly Street North Fitzroy

0.6km

The floorplan, measurements of rooms and land size are approximate. Jellis Craig does not accept any liability or responsibility for any inaccuracy in any plan, drawing or rendering used in the advertising material to describe the land and/or the property and/or any described features.
Suburb Report

Know your postcode

A reliable snapshot of the property market in Brunswick East.

Similar properties