Sold 13 Peckville Street, North Melbourne
Share

13 Peckville Street, North Melbourne

Private Sale - Sold on Mar 16, 2026

Contact Agent for Sold Price

2 Bed
1 Bath
  • Trevor Gange photo

    Trevor Gange

    Partner, Auctioneer & Licensed Estate Agent

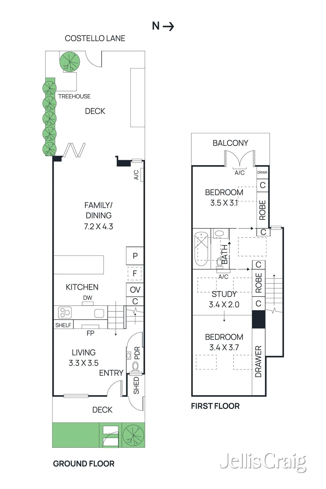
Space, Sunlight, and Sophisticated Style

Behind its charming Edwardian façade, this architect-designed home has been expertly reimagined, bringing together heritage character, generous light and an exceptional use of space.

At the front of the home, a welcoming front room provides an ideal study or work-from-home environment, while open-plan living and dining at the rear are complemented by a stone kitchen featuring premium Miele

... Read more

Location

Property statistics

  • Median house price

    $1.3m


  • Days on market*

    25


  • Victorian auction clearance rate

    74%


  • Auctions last week in Victoria

    1159


Data sourced from REIV
* Date published: 18/02/2026

Schools

St Aloysius College

31 Curran Street Melbourne North

0.2km

St Michael's School

8-14 Brougham Street Melbourne North

0.3km

North Melbourne Primary School

210 Errol Street North Melbourne

0.7km

Flemington Primary School

Mt Alexander Road Flemington

1.2km

The floorplan, measurements of rooms and land size are approximate. Jellis Craig does not accept any liability or responsibility for any inaccuracy in any plan, drawing or rendering used in the advertising material to describe the land and/or the property and/or any described features.
Suburb Report

Your connection to property insights

A reliable snapshot of the property market in North Melbourne.

Similar properties