Buy 127 Smith Street, Fitzroy
Share

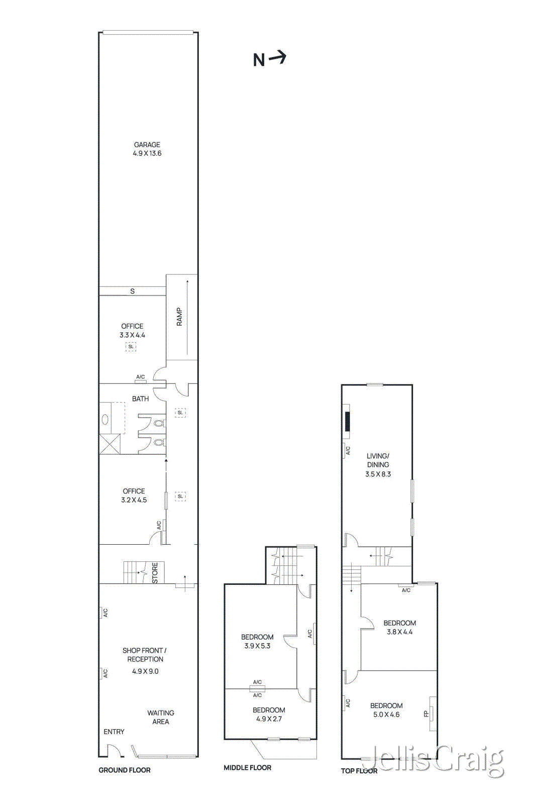
127 Smith Street, Fitzroy

For Sale

$2,200,000 - $2,400,000

4 Bed
1 Bath
4 Car
1 Study
217 m2
  • David Sanguinedo photo

    David Sanguinedo

    Senior Sales Consultant & Auctioneer

  • Alicia Cannizzaro photo

    Alicia Cannizzaro

    Sales Consultant

Live + Work in Fitzroy, Rare Creative/Commercial Opportunity on Smith Street (STCA)

Opportunities like this are incredibly rare on Smith Street , a freehold building that allows you to operate your business at street level and live privately above (STCA)

This isn’t just a property, it’s a way to eliminate the commute, take control of your workspace, and invest in a high-profile Fitzroy address at the same time.

The building offers immediate functionality with the

... Read more

Land size: 217 Square Metres approx.

Inspections

Inspection by appointment

Book Inspection

Location

Property statistics

  • Median house price

    $1.7m


  • Days on market*

    30+


  • Victorian auction clearance rate

    71%


  • Auctions last week in Victoria

    587


Data sourced from REIV
* Date published: 25/11/2025

Schools

Collingwood English Language School

19 Cambridge Street Collingwood

0.3km

St Joseph's School

46 Otter Street Collingwood

0.6km

Fitzroy Primary School

319 George Street Fitzroy

0.7km

Sacred Heart School

107 King William Street Fitzroy

0.7km

The floorplan, measurements of rooms and land size are approximate. Jellis Craig does not accept any liability or responsibility for any inaccuracy in any plan, drawing or rendering used in the advertising material to describe the land and/or the property and/or any described features.
Suburb Report

Your connection to property insights

A reliable snapshot of the property market in Fitzroy.

Similar properties