Sold 12 Eliza Close, Williamstown North
Share

12 Eliza Close, Williamstown North

Auction Sale - Sold on Nov 17, 2025

$1,935,000

5 Bed
2 Bath
3 Car
  • Anthony Christakakis photo

    Anthony Christakakis

    Licensed Estate Agent

The Family Dream, Unforgettably Delivered

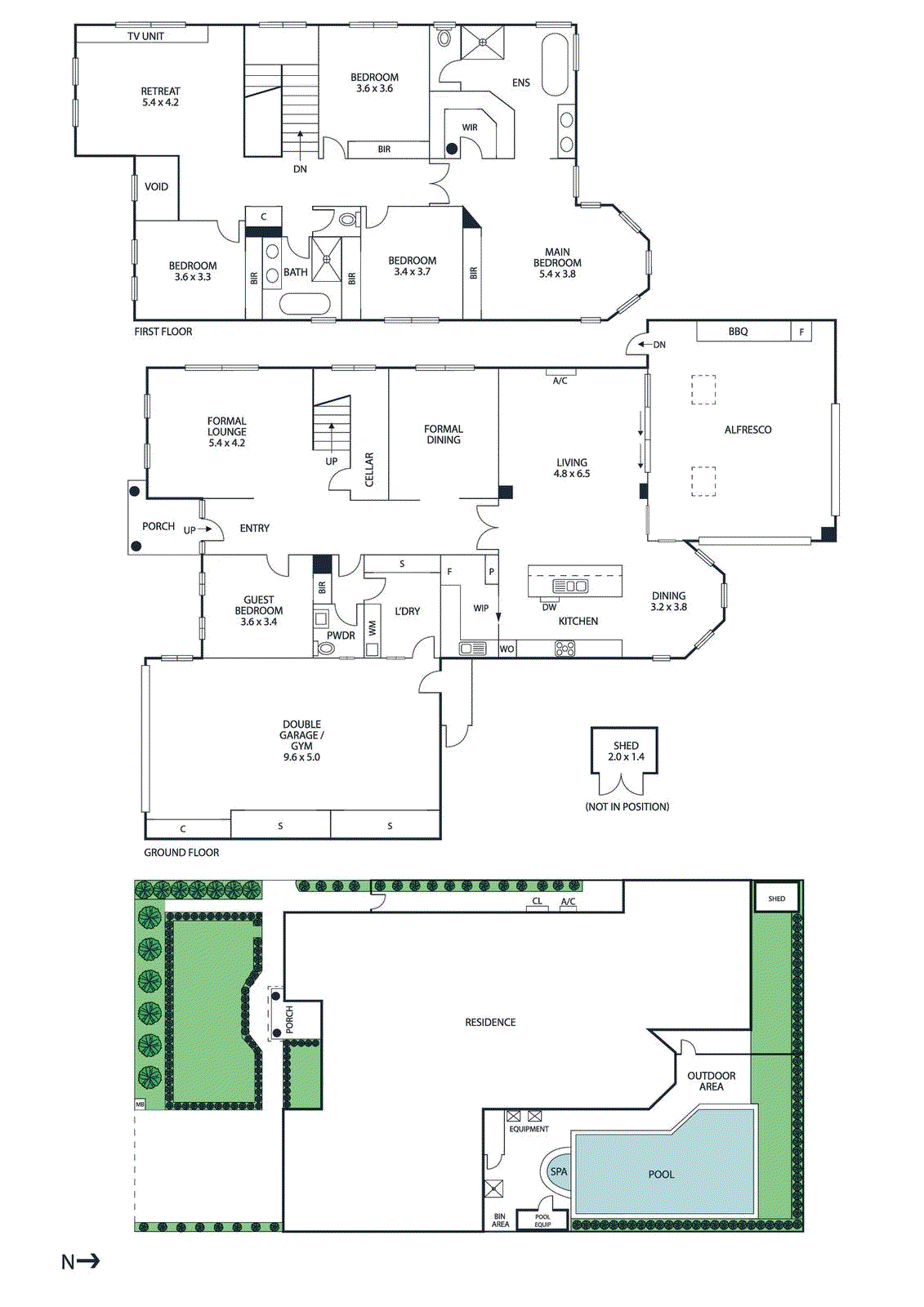
A residence that delivers family flexibility at its finest, where indoor luxury is matched by outdoor allure, this landmark home is elegance and excellence exemplified. A significant street presence and precisely landscaped front garden provide an unforgettable introduction to spectacular spaces for living, dining and entertaining – both formal and informal – that define the downstair

... Read more

Location

Property statistics

  • Median house price

    $1.4m


  • Days on market*

    25


  • Victorian auction clearance rate

    73%


  • Auctions last week in Victoria

    727


Data sourced from REIV
* Date published: 22/10/2025

Schools

Bayside P-12 College

Kororoit Creek Rd Williamstown

0.4km

Newport Gardens Primary School

39 Maddox Rd Newport

0.9km

Bayside P-12 College High School (Years 10-12)

33-43 Blenheim Rd Newport

1.3km

Sacred Heart School

4 Newcastle Street Newport

1.6km

The floorplan, measurements of rooms and land size are approximate. Jellis Craig does not accept any liability or responsibility for any inaccuracy in any plan, drawing or rendering used in the advertising material to describe the land and/or the property and/or any described features.
Suburb Report

Your connection to property insights

A reliable snapshot of the property market in Williamstown North.

Similar properties