Buy 1 South Court, Surrey Hills
Share

1 South Court, Surrey Hills

Auction - Sat, 23 May 12:00PM

Under Offer

$1,500,000 - $1,600,000

3 Bed
1 Bath
3 Car
1 Study
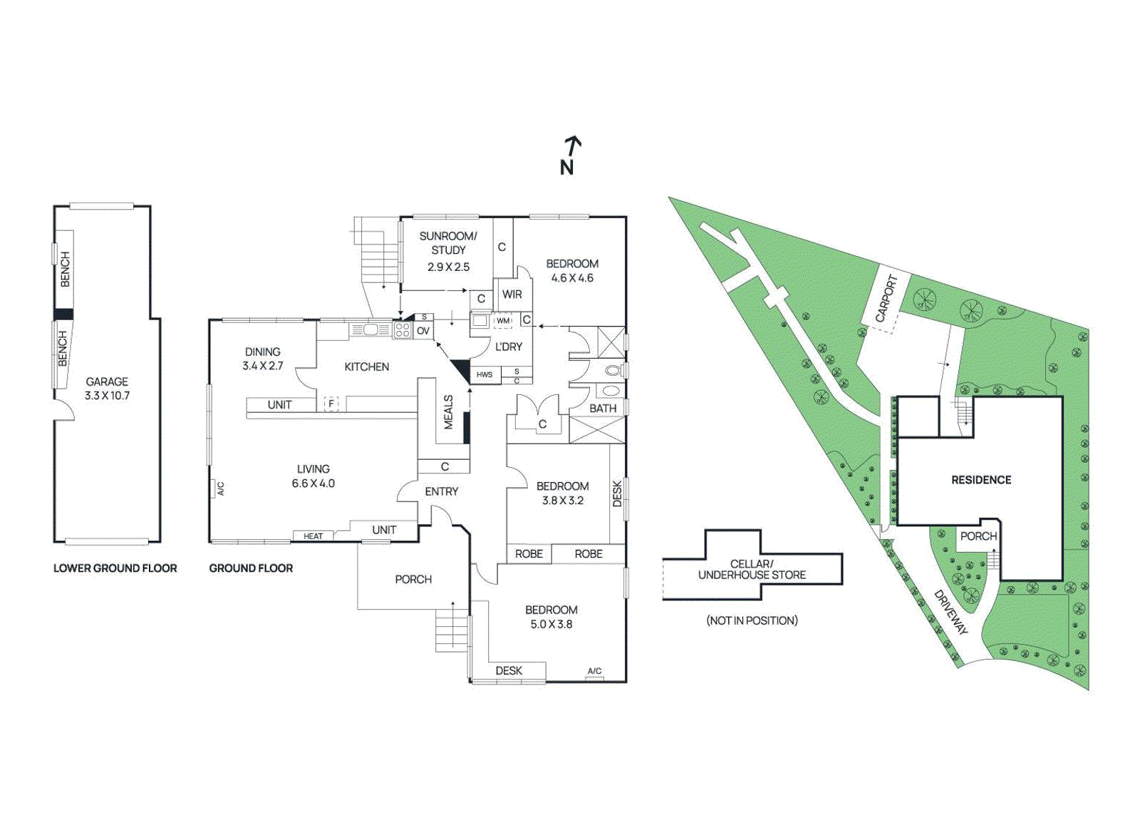
672 m2
  • Geordie Dixon-Sima photo

    Geordie Dixon-Sima

    Associate Director & Licensed Estate Agent

  • Monica Olivetto photo

    Monica Olivetto

    Sales Consultant

A Rare Cul-de-Sac Opportunity with No Heritage Overlay

Set in one of Surrey Hills’ most tightly held and family focused cul-de-sacs. With preferred north facing rear garden and no heritage overlay, the possibilities are endless. Offering exceptional flexibility to move in, update over time, undertake a substantial renovation or create an entirely new luxury home (STCA), in this prized court setting.

A warm and inviting layout begins with the living

... Read more

Land size: 672 Square Metres approx.

Thinking of selling?

Auction

Inspections

Inspection by appointment

Book Inspection

Location

Property statistics

  • Median house price

    $2.2m


  • Days on market*

    21


  • Victorian auction clearance rate

    71%


  • Auctions last week in Victoria

    727


Data sourced from REIV
* Date published: 24/04/2026

Schools

Surrey Hills Primary School

Beatrice Avenue Surrey Hills

1.1km

Siena College Ltd

815 Riversdale Road Camberwell

1.2km

St Dominic's School

145 Highfield Road Camberwell East

1.3km

Canterbury Primary School

Molesworth Street Canterbury

1.3km

The floorplan, measurements of rooms and land size are approximate. Jellis Craig does not accept any liability or responsibility for any inaccuracy in any plan, drawing or rendering used in the advertising material to describe the land and/or the property and/or any described features.
Suburb Report

Your connection to property insights

A reliable snapshot of the property market in Surrey Hills.

Similar properties