Auction - Sat, 22 November 11:30AM
Inspections from
499
 
      
    Building and Pest report for
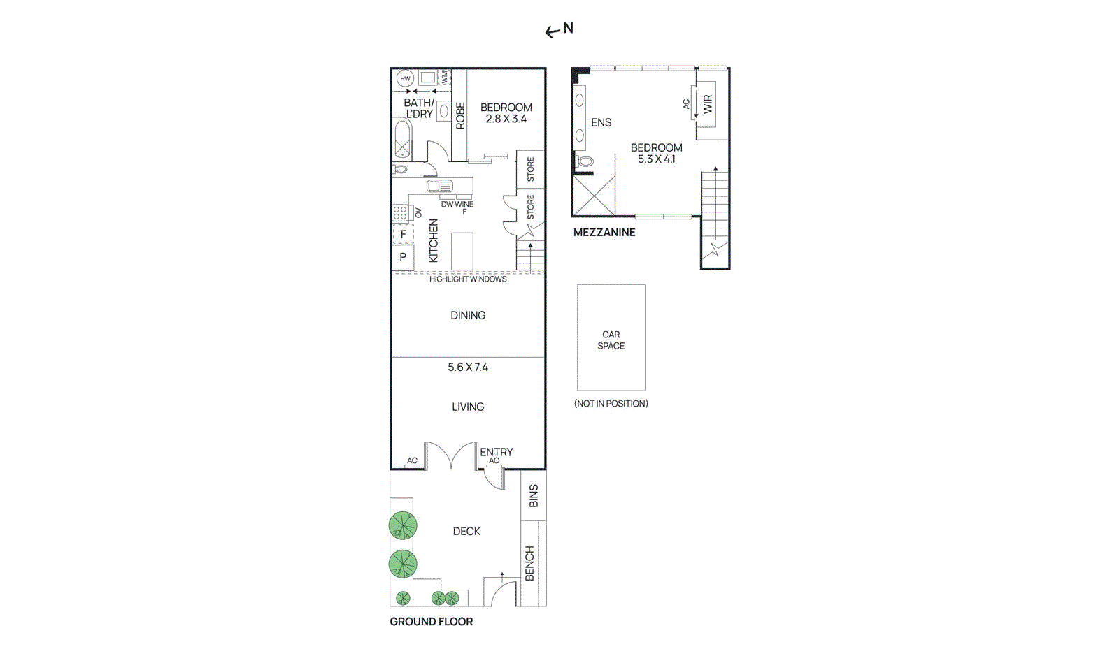
1/6 Westfield Street, Northcote
Inspections from
499
 
      
    Click below to receive the report from Before You Buy
Receive an independent building and pest report from qualified inspectors at an affordable price through Before You Buy.
ETA: 2-4 Business Days
Auction - Sat, 22 November 11:30AM
Embrace an exclusive Westgarth lifestyle in this ultra-trendy two bedroom, two bathroom townhouse set in a warehouse conversion, where low-maintenance comfort pairs with bespoke industrial styling and seamless indoor-outdoor flow. With its own street frontage and a private decked courtyard crafted for summertime soirées, the double-storey home impresses at every turn, from the soaring
... Read moreSat 22 Nov.11:30am
Saturday, 22 November
11:30am
Friday, 31 October
1:00pm - 1:30pm
Saturday, 1 November
12:30pm - 1:00pm
Thursday, 6 November
12:30pm - 1:00pm
Saturday, 8 November
1:30pm - 2:00pm
Median house price
Days on market
Victorian auction clearance rate
Auctions last week in Victoria
Spensley Street Primary School
193 Spensley Street Clifton Hill
0.6km
Westgarth Primary School
37-45 Brooke Street Northcote
0.8km
St Anthony's School
52 Austin Street Alphington
1.1km
St Joseph's School
39 James Street Northcote
1.3km
A reliable snapshot of the property market in Northcote.