Auction - Sat, 15 November 1:00PM
Inspections from
525

Building and Pest report for
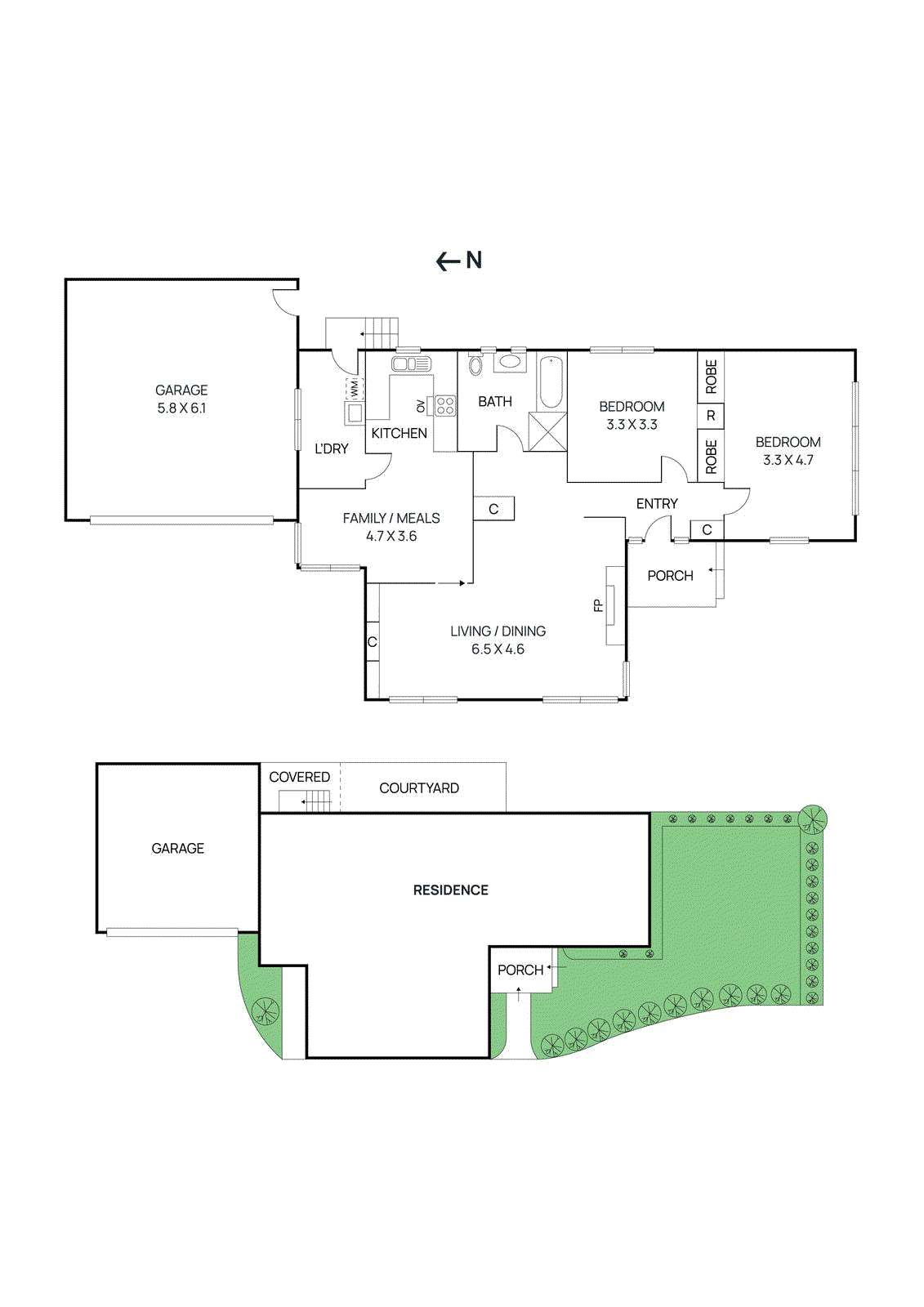
1/112A Severn Street, Box Hill North
Inspections from
525
Click below to receive the report from Before You Buy
Receive an independent building and pest report from qualified inspectors at an affordable price through Before You Buy.
ETA: 2-4 Business Days
Auction - Sat, 15 November 1:00PM
Positioned within the coveted Box Hill High School zone, this single-level solid brick residence showcases a light-filled interior promising a lifestyle of unrivalled convenience, all within walking distance to parks, public transport, the bustling centre of Box Hill, and the hospital. Dual-aspect windows, decorative cornicing, and picture rails feature in the living and dining room, where
... Read moreSat 15 Nov.1:00pm
Saturday, 15 November
1:00pm
Saturday, 25 October
10:30am - 11:00am
Thursday, 30 October
1:00pm - 1:30pm
Saturday, 1 November
10:00am - 10:30am
Thursday, 6 November
1:00pm - 1:30pm
Median house price
Days on market
Victorian auction clearance rate
Auctions last week in Victoria
Box Hill Senior Secondary College
Dunloe Avenue Mont Albert North
0.6km
Koonung Secondary College
615 Elgar Road Mont Albert North
1.0km
Our Lady of Sion College
1065 Whitehorse Road Box Hill
1.3km
Mont Albert Primary School
Barloa Road Mont Albert
1.4km
A reliable snapshot of the property market in Box Hill North.