Rent 703/338 Kings Way, South Melbourne
Share

703/338 Kings Way, South Melbourne

FOR LEASE - Available Now

Rent: $550.00 pw Bond: $2390.00

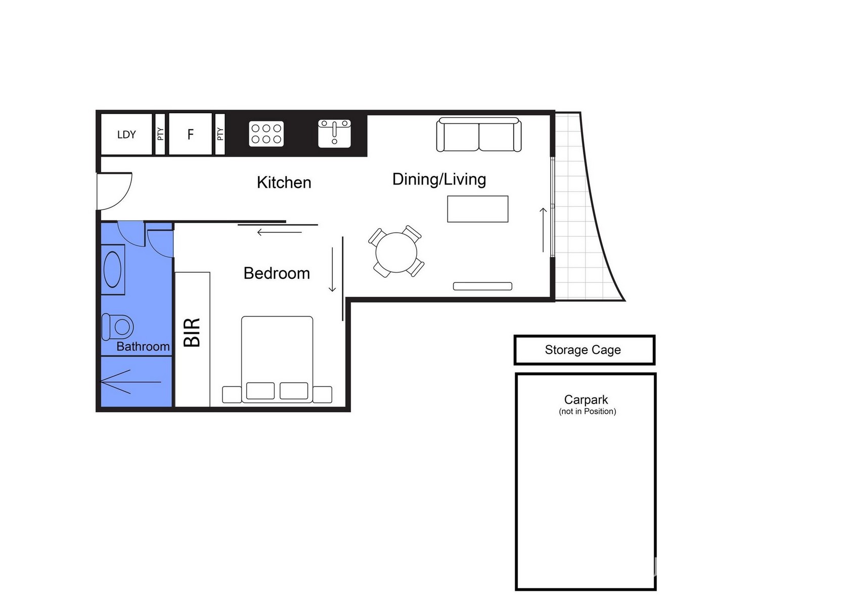
1 Bed
1 Bath
1 Car

Luxury Living In The Heart Of South Melbourne

-Open-plan layout offering seamless living and dining

-Access to premium building facilities, including a rooftop terrace and gym

-Secure parking included

-Pre-wired for Foxtel and NBN

-On-site building manager for added convenience

Jellis Craig Inner North Property Management invites you to inspect this property.

If you would like to inspect this property please click ‘book

... Read more

Features: Air Conditioning, Balcony, Ducted Heating, Floorboards, Intercom,

Book Inspection

Inspections

Inspection by appointment

Book Inspection

Location

Property statistics

  • Median house price

    $1.8m


  • Days on market*

    1


  • Victorian auction clearance rate

    75%


  • Auctions last week in Victoria

    1006


Data sourced from REIV
* Date published: 20/03/2026

Schools

Mac Robertson Girls High School

350-370 Kings Way Melbourne

0.2km

Melbourne Grammar School

1 Domain Rd Melbourne

0.5km

Melbourne Grammar School

Domain Rd Melbourne

0.7km

Victorian College Of The Arts Secondary School

57 Miles Street Southbank

0.9km

The floorplan, measurements of rooms and land size are approximate. Jellis Craig does not accept any liability or responsibility for any inaccuracy in any plan, drawing or rendering used in the advertising material to describe the land and/or the property and/or any described features.
Suburb Report

Your connection to property insights

A reliable snapshot of the property market in South Melbourne.

Similar rental properties