Sold 3/96 Broadway, Elwood
Share

3/96 Broadway, Elwood

Private Sale - Sold on Aug 16, 2022

Contact Agent for Sold Price

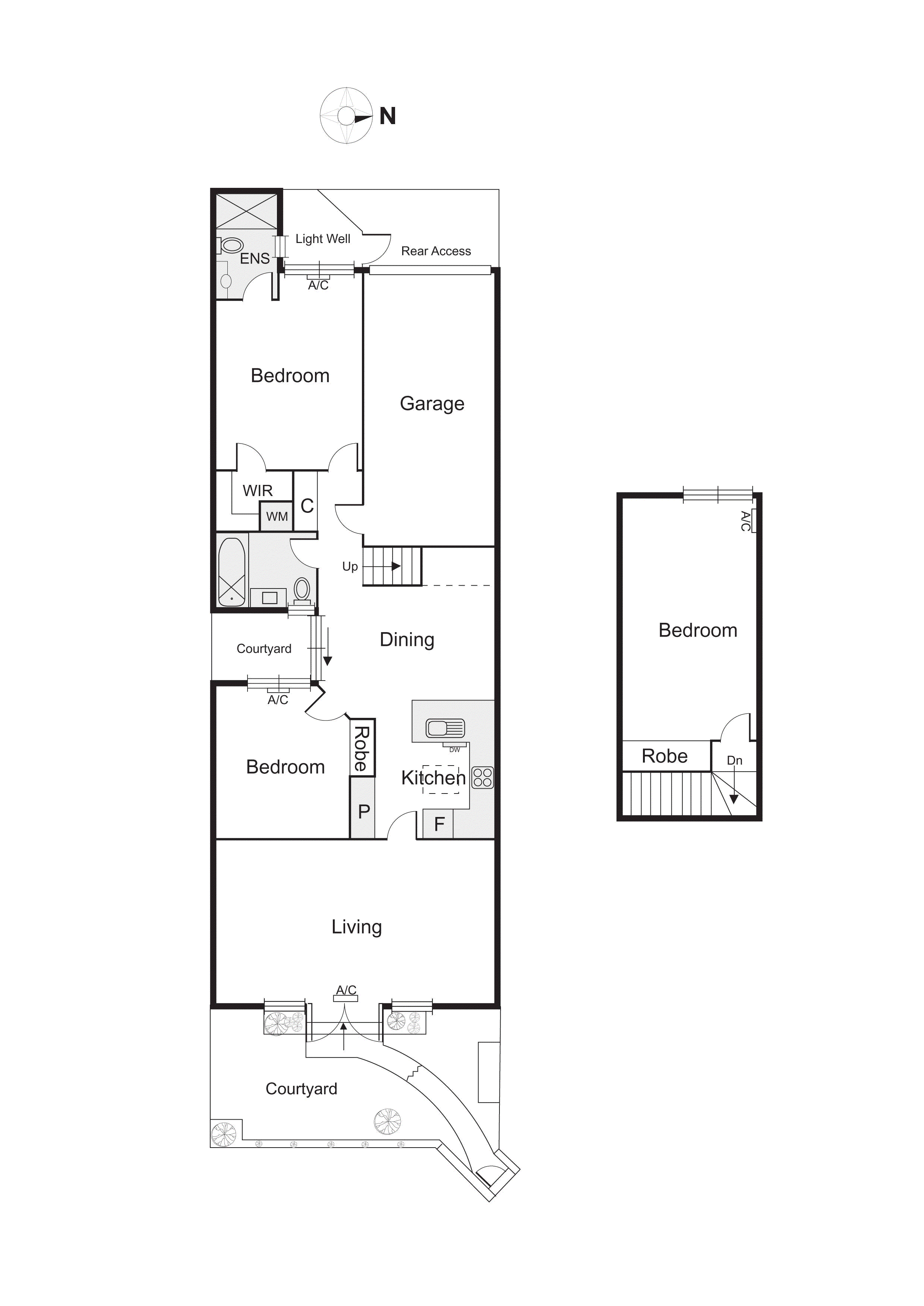
3 Bed
2 Bath
1 Car
110 m2
  • Sam Gamon photo

    Sam Gamon

    Branch Manager & Auctioneer

A Secluded Seaside Home – Set to Impress

A stone's throw from the captivating Elwood café scene, this enticing 3 bedroom, 2 bathroom period inspired town residence with in-active Owners Corp ($145per annum) is a lovely slice of charming beachside living. Designed with great influence from the forefront original home, this contemporary abode flaunts its charm through an engaging façade with timber fretwork, Australian hardwood floors

... Read more

Land size: 152 Square Metres approx.

Location

Property statistics

  • Median house price

    $2.3m


  • Days on market

    -


  • Victorian auction clearance rate

    83%


  • Auctions last week in Victoria

    1101


Data sourced from REIV

Schools

St Columba's School

24 Glenhuntly Road Elwood

0.1km

Elwood College

101 Glenhuntly Road Elwood

0.3km

Elwood Primary School

Scott St Elwood

0.8km

St Kilda Primary School

Brighton Rd St Kilda

1.3km

The floorplan, measurements of rooms and land size are approximate. Jellis Craig does not accept any liability or responsibility for any inaccuracy in any plan, drawing or rendering used in the advertising material to describe the land and/or the property and/or any described features.
Suburb Report

Know your postcode

A reliable snapshot of the property market in Elwood.

Similar properties