Sold 3/101 Addison Street, Elwood
Share

3/101 Addison Street, Elwood

Auction Sale - Sold on Oct 8, 2022

$1,130,000

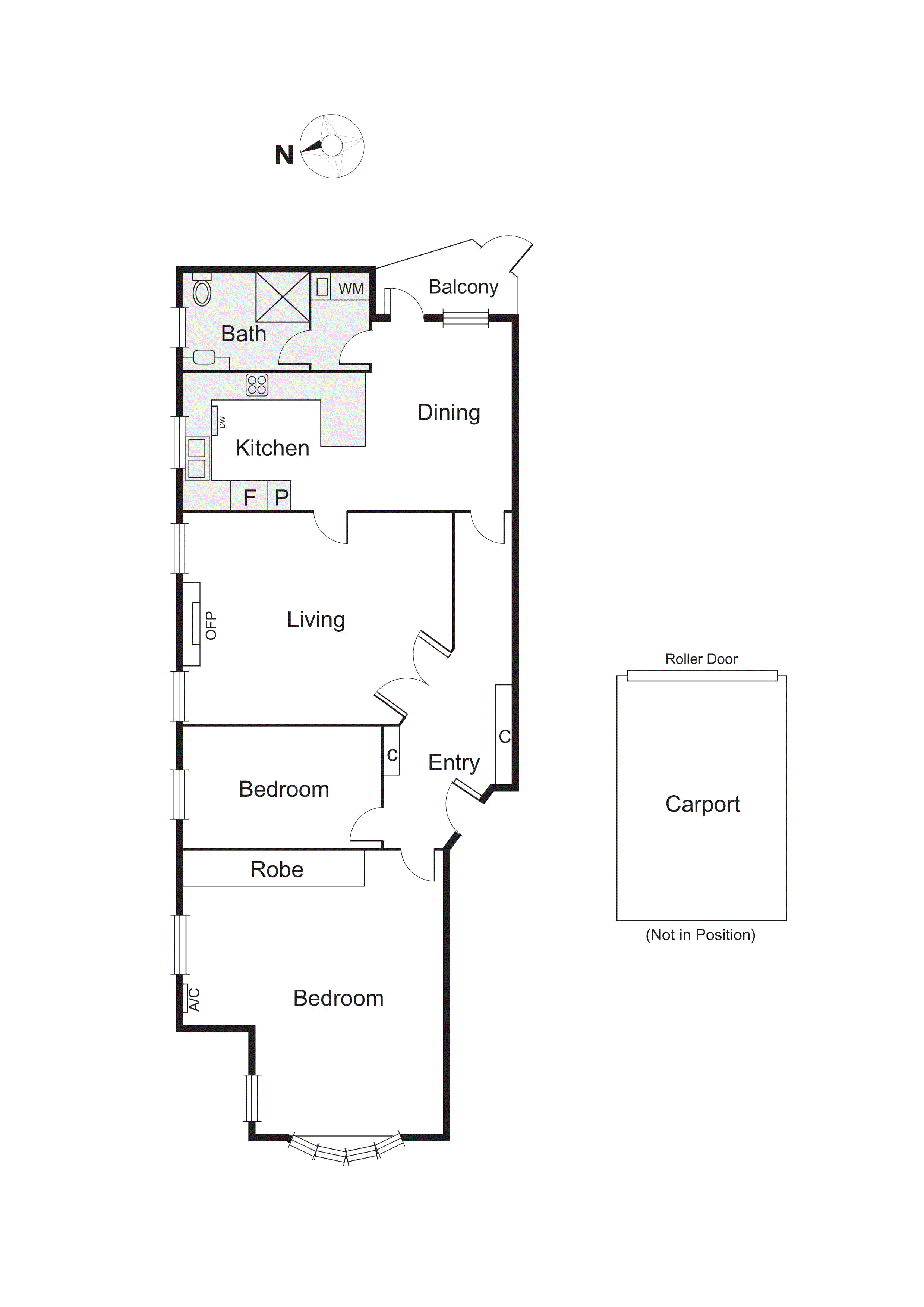
2 Bed
1 Bath
1 Car
98 m2
  • Sam Gamon photo

    Sam Gamon

    Branch Manager & Auctioneer

Alluring Art Deco on Leafy Addison

Perfectly pairing the timeless appeal of Art Deco architecture with a sophisticated just-completed renovation, this palatial apartment holds a coveted position within the tightly-held Glen Brae building. Within moments of Elwood's dazzling foreshore and village, the glorious home is an irresistible opportunity to share in one of Melbourne's most highly-desired beachside lifestyles.

One of just

... Read more

Location

Property statistics

  • Median house price

    $2.3m


  • Days on market

    -


  • Victorian auction clearance rate

    83%


  • Auctions last week in Victoria

    1101


Data sourced from REIV

Schools

St Columba's School

24 Glenhuntly Road Elwood

0.3km

Elwood College

101 Glenhuntly Road Elwood

0.5km

Elwood Primary School

Scott St Elwood

0.9km

St Kilda Primary School

Brighton Rd St Kilda

1.3km

The floorplan, measurements of rooms and land size are approximate. Jellis Craig does not accept any liability or responsibility for any inaccuracy in any plan, drawing or rendering used in the advertising material to describe the land and/or the property and/or any described features.
Suburb Report

Know your postcode

A reliable snapshot of the property market in Elwood.

Similar properties