Rent 21 Fern Avenue, Windsor
Share

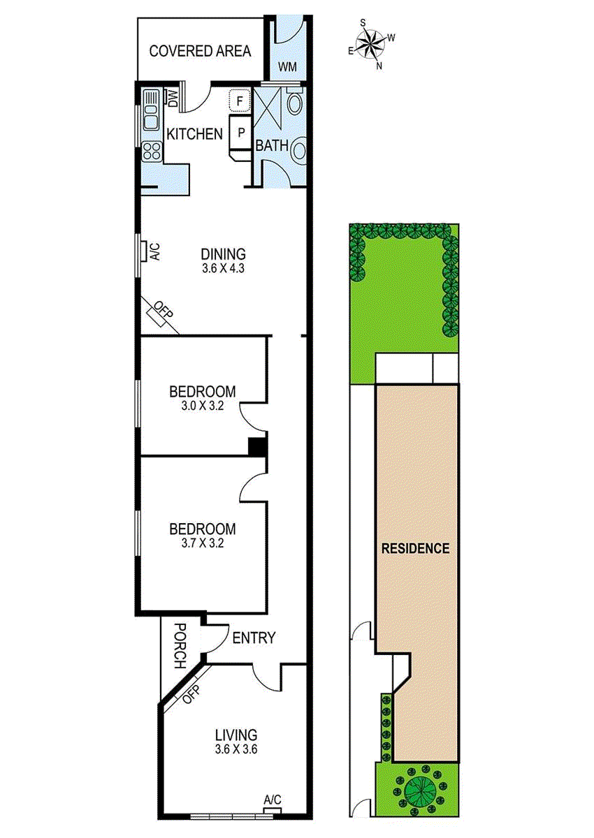
21 Fern Avenue, Windsor

FOR LEASE - Available April 2nd 2026

Rent: $750.00 pw Bond: $3259.00

2 Bed
1 Bath

An Edwardian with a modern edge

Quintessentially Edwardian, complemented by a modern edge and a courtyard that's beautifully green and serene, this enticing three bedroom home has all the appeal. High Street trams and Prahran East Village are moments away while Chapel Street's most progressive cafes and Windsor station can easily be walked to from this quiet, convenient setting. The high ceilings and polished floorboards of a

... Read more

Features: Courtyard, Dishwasher, Floorboards, Fully Fenced,

Book Inspection

Inspections

Inspection by appointment

Book Inspection

Location

Property statistics

  • Median house price

    $1.4m


  • Days on market*

    1


  • Victorian auction clearance rate

    76%


  • Auctions last week in Victoria

    352


Data sourced from REIV
* Date published: 11/03/2026

Schools

Windsor Primary School

Hornby St Windsor

0.4km

St Mary's School

214 Dandenong Road St Kilda East

0.5km

Christian Brothers' College

11 Westbury Street St Kilda East

0.5km

Presentation College Windsor

187 Dandenong Road Windsor

0.5km

The floorplan, measurements of rooms and land size are approximate. Jellis Craig does not accept any liability or responsibility for any inaccuracy in any plan, drawing or rendering used in the advertising material to describe the land and/or the property and/or any described features.
Suburb Report

Your connection to property insights

A reliable snapshot of the property market in Windsor.

Similar rental properties