Auction - Sat, 28 February 3:00PM
Contact Agent
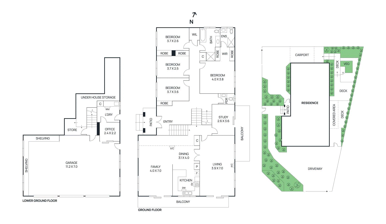
4 Bed
2 Bath
4 Car
1 Study
648 m2
Breathtaking Views, Brilliant Design
Exceptionally designed to deliver the ultimate family environment, this carefree home captures the corner and showcases the perfect balance of style and space with room to work from home and entertain with ease.
Wowing from the moment you enter; the home’s grand foyer is graced with soaring cathedral ceilings and porcelain tiles that lead up the stairs to the home’s living and entertaining
... Read moreLand size: 648 Square Metres approx.
Auction
Sat 28 Feb.3:00pm
Saturday, 28 February
3:00pm
Inspections
Saturday, 14 February
2:00pm - 2:30pm
Sunday, 15 February
11:00am - 11:30am
Thursday, 19 February
5:30pm - 6:00pm
Saturday, 21 February
2:00pm - 2:30pm
Location
Property statistics
-
Median house price
$1.5m
-
Days on market
30
-
Victorian auction clearance rate
83%
-
Auctions last week in Victoria
474
Data sourced from REIV
Schools
Jells Park Primary School
Petronella Avenue Wheelers Hill
0.7km
St Justin's School
42 Whalley Drive Wheelers Hill
1.1km
Brandon Park Primary School
Cootamundra Drive Wheelers Hill
2.3km
Mulgrave Primary School
Gladeswood Drive Mulgrave
2.6km
The floorplan, measurements of rooms and land size are approximate. Jellis Craig does not accept any liability or responsibility for any inaccuracy in any plan, drawing or rendering used in the advertising material to describe the land and/or the property and/or any described features.
Suburb Report
Your connection to property insights
A reliable snapshot of the property market in Wheelers Hill.
Similar properties